












544.544 €
3-Room New Build Flat Vienna 1230
73,03 m²
2. Etage
3 Rooms
1 Bath
About this Property
Introduction
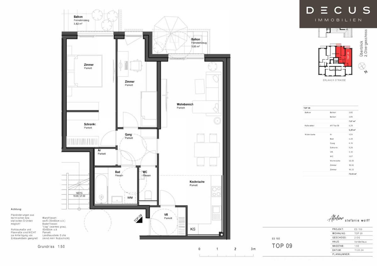
This modern 3-room apartment with 73.03 m² living space is located in a quiet area of Vienna 1230, on the 2nd floor of the new build project THE 150. Built in 2025 with solid brick construction, air-water heat pump for heating, hot water and cooling, plus underfloor heating. The apartment is handed over turnkey without kitchen, featuring elegant plank floors, high-quality bathroom tiles and triple-glazed windows. Two balconies with southwest orientation provide 7.67 m² outdoor space. The orientation ensures bright and pleasant living conditions, supplemented by preparation for split air conditioning in every room. A separate WC and bathroom with bathtub complete the high-quality fittings. The cellar with 5.43 m² and storage room complete the offer.
Highlights
- Solid brick construction with eco-friendly glass wool insulation
- Air-water heat pump with PV support and underfloor heating
- Underfloor heating and towel radiators in bathrooms
- ALU-plastic windows with triple glazing and UV protection
- Video intercom and fire-resistant entrance doors
- Two southwest balconies (7.67 m²)
- Lift, underground garage with wallbox, bicycle room
- Barrier-free and wheelchair accessible
Location & Surroundings
The project is situated in a quiet side street in Vienna 1230, Liesing. U6 subway, bus and Badnerbahn are reachable within minutes on foot. Supermarket, pharmacy and kindergarten under 500 m, doctor and bus under 250 m. Motorway access in 1,000 m, shopping centre in 1,000 m. Clinic and school under 2 km. Excellent connections to the city centre.
Additional Information
- Completion Q4 2025, first occupancy
- Energy certificate: Heating demand 41.3 kWh/m²a (Class B), fGEE 0.68 (A+)
- Operating costs: 2.11 €/m²/month incl. reserve excl. VAT
- Underground parking optional: €35,000 + €22.40/month
Price Overview
Purchase Price
544.544 €
Purchase Price
544.544 €
Broker Commission
3% des Kaufpreises zzgl. 20% USt.
Tour Request
Property Details
Key Information
Area
Rooms
Building
Unit
Rental Details
Outdoor Areas
Basement / Storage Room
Floor
Parking Options
Extras
Living Comfort
Flooring
Amenities
Kitchen
Bathroom
Other
Energy
Heating
Cooling
Heating Demand (HWB)
Overall Energy Efficiency (fGEE)
Property Floorplan

3D Tour
Documents
About the Provider
Nicolas Putzlager
DECUS Immobilien GmbHhttps://www.decus.at
Kärntner Straße 39, Wien 1010 Wien
about DECUS Immobilien GmbH
1200
1 Year
Price Overview
Purchase Price
544.544 €
Purchase Price
544.544 €
Broker Commission
3% des Kaufpreises zzgl. 20% USt.
Tour Request
Nicolas Putzlager
DECUS Immobilien GmbHhttps://www.decus.at
Kärntner Straße 39, Wien 1010 Wien