




























1.500 €
/monthMaisonette Apt Mils, 100m², Balcony
100 m²
3 Rooms
1 Bath
About this Property
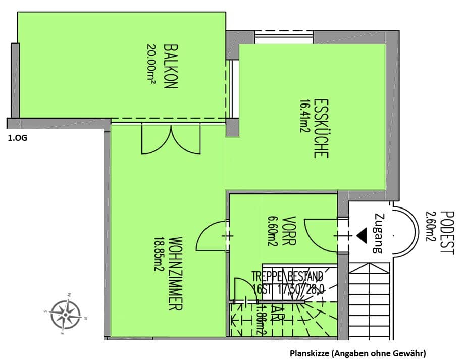
This bright maisonette apartment with approx. 100 m² living space is located in an architect's house built in 1992 in Mils near Hall in Tirol. The apartment comprises 3 rooms plus dining area, 1 bathroom, 1 separate WC and 2 storage rooms. It features a south-west orientation with beautiful views of the greenery and a covered west balcony of approx. 20 m². Floors consist of solid wood parquet, tiles and marble. The fitted kitchen has a granite worktop. The bathroom includes a window, bathtub, shower, double sink, bidet and marble tiles. Central underfloor heating with gas ensures comfortable living.
Highlights
- Covered west balcony approx. 20 m²
- Fitted kitchen with granite worktop
- Bathroom with bathtub, shower, bidet and window
- Solid wood parquet, tiles and marble flooring
- Central underfloor heating (gas)
- Beautiful view of greenery
- 1 outdoor parking space
- 2 storage rooms
Location & Surroundings
Mils is situated in the Inn Valley at the foot of the Karwendel Mountains, just 15-20 minutes' drive east of Innsbruck. Its sunny location makes it a popular residential and recreational area. Hiking and walking trails as well as varied cycling routes are available in summer, while a cross-country ski trail and night toboggan run await in winter nearby. In the immediate vicinity: Farm shop (4 minutes' walk), doctor (7 minutes' walk), kindergarten and school (11 minutes' walk), bus (<500 m). Supermarket (<1.500 m). Motorway access (<2.000 m).
Additional Information
- Total rent incl. service charges: approx. EUR 1,500 / month
- Available from June 2026
- Deposit: 3 gross monthly rents
- Energy certificate: 93.9 kWh/m²a
- Pets welcome
Price Overview
Total Monthly Cost
1.500 €
/monthRent
1.500 €
Operating Costs
-
Heating Costs
-
Other Costs
-
All amounts incl. VAT. For details on how the amounts are calculated, see price breakdown.
Security Deposit
3 Bruttomonatsmieten
Tour Request
Property Details
Key Information
Area
Rooms
Building
Unit
Outdoor Areas
Basement / Storage Room
Parking Options
Flooring
Amenities
Kitchen
Bathroom
Energy
Heating
Heating Demand (HWB)
Property Floorplan

About the Provider
Stephanie Eisenkölbl
SAGENTUS Immobilien GmbHhttps://www.sagentus.at/
Adamgasse 9a, Innsbruck 6020
about SAGENTUS Immobilien GmbH
19
4 months
Price Overview
Total Monthly Cost
1.500 €
/monthRent
1.500 €
Operating Costs
-
Heating Costs
-
Other Costs
-
All amounts incl. VAT. For details on how the amounts are calculated, see price breakdown.
Security Deposit
3 Bruttomonatsmieten
Price Breakdown
Tour Request
Stephanie Eisenkölbl
SAGENTUS Immobilien GmbHhttps://www.sagentus.at/
Adamgasse 9a, Innsbruck 6020