





1.214 €
/month2-Room Flat 49m² Vienna 1070
49,52 m²
6. Etage / 6. Liftstock
2 Rooms
1 Bath
About this Property
Introduction
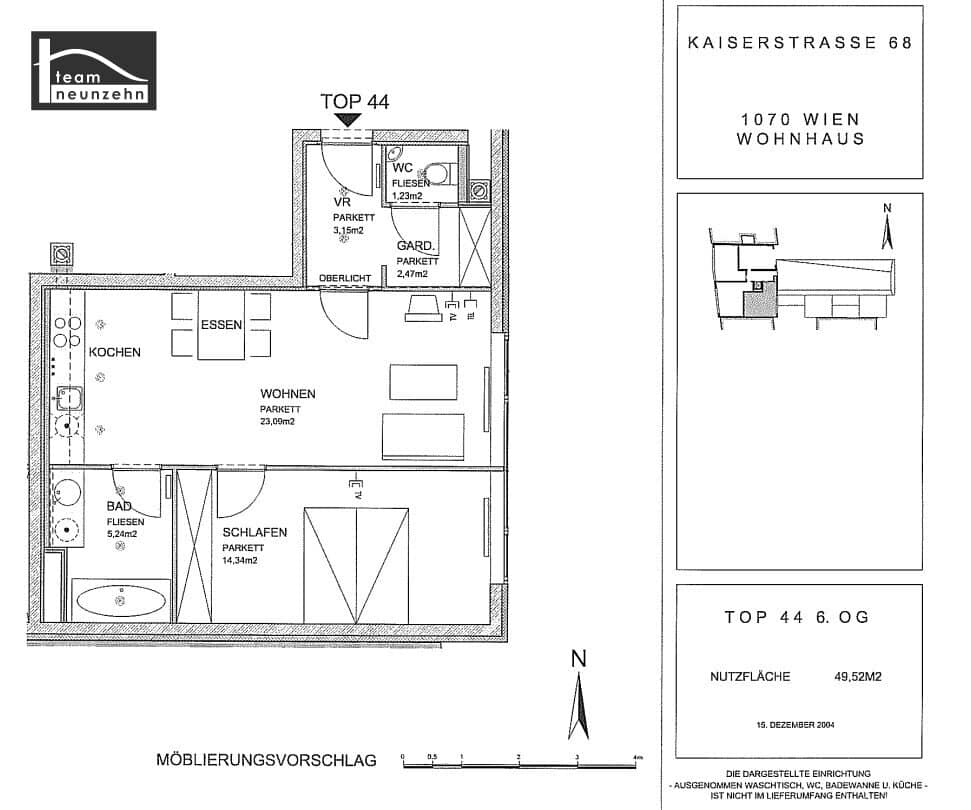
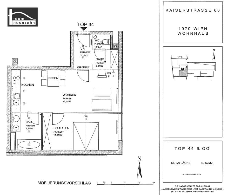
This 2-room apartment is centrally located in 1070 Vienna, Kaiserstraße 68, on the 6th floor with elevator. With 49 m² of living space, it was built in 2004 as a new construction and is in good condition. The apartment faces east and offers pleasant morning light. From the entrance hall, you access the living kitchen with fitted kitchen, separate WC, bedroom, and bathroom with bathtub. The fittings include parquet and tiled floors as well as central gas heating. A cellar compartment provides additional storage space. The energy efficiency is rated B.
Highlights
- 49 m² living space
- 2 rooms with living kitchen incl. fitted kitchen
- Bathroom with bathtub
- Separate WC
- Parquet and tiled floors
- Central heating (gas)
- Elevator available
- Cellar compartment
- East orientation with morning light
Location & Surroundings
The apartment is in a central location near Burggasse, Stadthalle, and Mariahilfer Straße. U-Bahn and tram are within 250 m and 50 m respectively, supermarket and pharmacy under 50 m. Schools and kindergartens are within 200-325 m. Restaurants, cafés, and shopping options are within walking distance. Green spaces for recreation are nearby.
Additional Information
- Rent: € 1.214,35 incl. operating costs, VAT
- Advance heating: € 41,59; hot water: € 19,06
- Deposit: 3 gross monthly rents
- Energy certificate: Heating demand 36.2 kWh/m²a (class B)
- Available immediately, 5-year fixed term
Price Overview
Total Monthly Cost
1.214 €
/monthRent
1.097 €
Operating Costs
117 €
Heating Costs
-
Other Costs
-
All amounts incl. VAT. For details on how the amounts are calculated, see price breakdown.
Security Deposit
3 Bruttomonatsmieten
Tour Request
Property Details
Key Information
Area
Rooms
Building
Unit
Rental Details
Basement / Storage Room
Floor
Extras
Flooring
Amenities
Kitchen
Bathroom
Energy
Heating
Heating Demand (HWB)
Overall Energy Efficiency (fGEE)
Property Floorplan

What's near Kaiserstraße 68, Wien 1070
About the Provider
Marija Ivanov
Teamneunzehn-Gruppehttps://teamneunzehn.at/
Handelskai 94-96/44.OG, Wien 1200 Wien
about Teamneunzehn-Gruppe
1712
1 Year
Price Overview
Total Monthly Cost
1.214 €
/monthRent
1.097 €
Operating Costs
117 €
Heating Costs
-
Other Costs
-
All amounts incl. VAT. For details on how the amounts are calculated, see price breakdown.
Security Deposit
3 Bruttomonatsmieten
Price Breakdown
Tour Request
Marija Ivanov
Teamneunzehn-Gruppehttps://teamneunzehn.at/
Handelskai 94-96/44.OG, Wien 1200 Wien