













1.450 €
/monthTerrace Apartment in Simmering
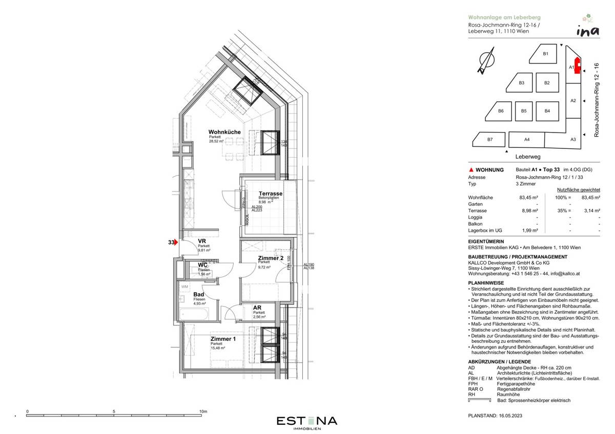
83,45 m²
4. Etage
3 Rooms
1 Bath
About this Property
This modern new-build apartment on the 4th floor in Vienna-Simmering offers 83.45 m² of living space with 3 rooms, built in 2024. It features a perfect layout with a spacious living kitchen, two bedrooms, bathroom with bathtub and washing machine connection, and separate toilet. The unit includes an 8.98 m² terrace facing north, allowing plenty of daylight. Energy-efficient underfloor heating, ceiling cooling, and district heating ensure comfort. The as-new condition with parquet and tile flooring, open kitchen, and elevator completes the offer.
Highlights
- Terrace 8.98 m² facing north
- Underfloor heating and ceiling cooling
- Open living kitchen
- Parquet and tile flooring
- Elevator available
- Underground garage with EV charging
- Bicycle room
- Energy efficiency: HWB B, F-Gee A+
Location & Surroundings
The apartment is located in Vienna-Simmering, Kaiserebersdorf, near Huma eleven shopping center. Supermarkets, schools, kindergartens, and doctors are reachable in 5-10 minutes on foot. Tram lines 11 and 71, as well as buses 71A, 71B, 73A, 73B, 79A, and 79B provide excellent connections. Vienna city center is 30 minutes away, the airport 15 minutes by car. Surrounding area with green spaces, parks, and recreation like Simmeringer Bad.
Additional Information
- Rent: € 1,449.69 incl. maintenance and 10% VAT
- Deposit: € 4,349.07
- Minimum net income: € 3,650
- Parking space optional from € 110
- Energy certificate: HWB 25.6 kWh/m²a (B), F-Gee 0.58 kWh/m²a (A+), valid until 2032
Price Overview
Total Monthly Cost
1.450 €
/monthRent
1.269 €
Operating Costs
181 €
Heating Costs
-
Other Costs
-
All amounts incl. VAT. For details on how the amounts are calculated, see price breakdown.
Security Deposit
4.349 €
Tour Request
Property Details
Key Information
Area
Rooms
Building
Unit
Rental Details
Outdoor Areas
Floor
Parking Options
Extras
Flooring
Amenities
Kitchen
Bathroom
Other
Energy
Heating
Cooling
Heating Demand (HWB)
Overall Energy Efficiency (fGEE)
Property Floorplan

About the Provider
Edita Drina
ESTINA Immobilienhttps://estina.at/
Praterstraße 66, Wien 1020
about ESTINA Immobilien
224
5 months
Price Overview
Total Monthly Cost
1.450 €
/monthRent
1.269 €
Operating Costs
181 €
Heating Costs
-
Other Costs
-
All amounts incl. VAT. For details on how the amounts are calculated, see price breakdown.
Security Deposit
4.349 €
Price Breakdown
Tour Request
Edita Drina
ESTINA Immobilienhttps://estina.at/
Praterstraße 66, Wien 1020