









1.199 €
/month2-Room Apartment with Loggia in Bregenz
62 m²
1. Etage/5
2 Rooms
1 Bath
About this Property
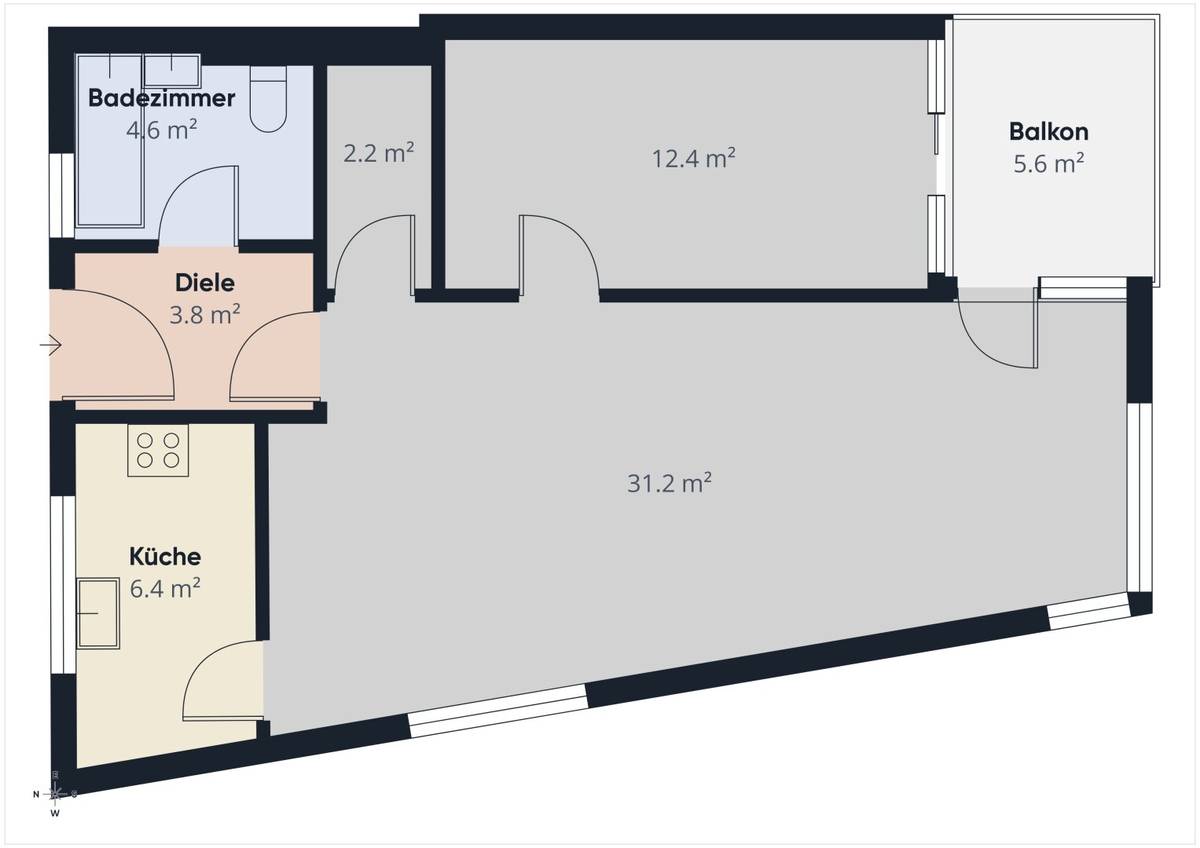
In Arlbergstraße 91 in Bregenz is this charming 2-room apartment on the 1st floor of a well-maintained residential complex built in 1995. With 62 m² living space, a glazed loggia of 6 m² and an included underground parking space, it offers comfort and functionality. The apartment is in very good condition, freshly painted and with newly sanded and sealed floors. The layout includes a central hallway, a spacious living and dining area of 31 m², a bedroom of 13 m², a separate kitchen, a bathroom and a storage room. The modern fitted kitchen is fully equipped. The loggia with movable sliding elements provides flexible outdoor space. The south orientation ensures pleasant light.
Highlights
- Modern fitted kitchen with all appliances
- Glazed loggia (6 m²) south-facing
- Underground parking space included
- Parquet and tile flooring
- Central heating
- Lift available
- Freshly painted and floors resealed
- Storage room
Location & Surroundings
The location in Bregenz is attractive and convenient for everyday life. Bus stop reachable in less than 1 minute, supermarket in 5 minutes walk, school right at the door in 1 minute. Pharmacy, bakery and bank within 6 minutes. Train station and motorway access in 12 minutes each. Shopping centre, kindergarten and doctor within walking distance. The residential complex offers a pleasant living environment with good access to leisure and recreation facilities.
Additional Information
- Underground parking space included
- Separate WC
- Lift in the building
- Barrier-free
Price Overview
Total Monthly Cost
1.199 €
/monthRent
918 €
Operating Costs
281 €
Heating Costs
-
Other Costs
-
All amounts incl. VAT. For details on how the amounts are calculated, see price breakdown.
Security Deposit
3 Bruttomonatsmieten
Tour Request
Property Details
Key Information
Area
Rooms
Building
Unit
Rental Details
Outdoor Areas
Floor
Parking Options
Flooring
Amenities
Kitchen
Energy
Heating
Property Floorplan

What's near Arlbergstraße 91, Bregenz 6900
About the Provider
Maximilian Kaufmann
Rimo Immobilien GmbHhttps://www.rimo.at/
Marktplatz 7, Feldkirch 6800
about Rimo Immobilien GmbH
138
3 months
Price Overview
Total Monthly Cost
1.199 €
/monthRent
918 €
Operating Costs
281 €
Heating Costs
-
Other Costs
-
All amounts incl. VAT. For details on how the amounts are calculated, see price breakdown.
Security Deposit
3 Bruttomonatsmieten
Price Breakdown
Tour Request
Maximilian Kaufmann
Rimo Immobilien GmbHhttps://www.rimo.at/
Marktplatz 7, Feldkirch 6800