


























15 €/m²
/monthModern office 217m² near Naschmarkt
217 m²
2. Etage
6 Rooms
About this Property
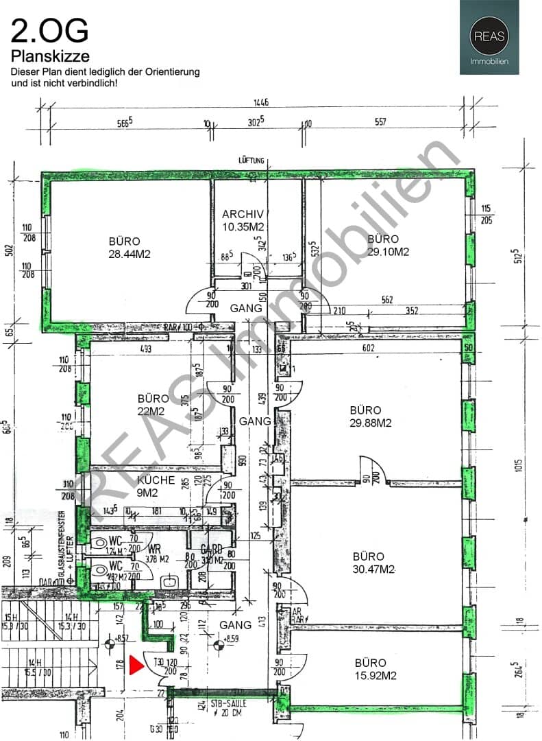
This modern office is located centrally in Vienna's 5th district, near Naschmarkt and Willi-Frank-Park. It covers 217 m² of usable space on the 2nd floor of a representative office building with elevator. The layout includes an entrance area, vestibule, two WCs with washroom, fully equipped fitted kitchen, six separately accessible rooms, and a storage room. High-quality parquet flooring, modern lighting, complete IT cabling, Internorm windows, and central building heating ensure comfort. The quiet courtyard side offers a green view and shared garden use.
Highlights
- Fully equipped fitted kitchen with appliances (fridge, stove, extractor, dishwasher)
- High-quality parquet flooring
- Six separate rooms
- Two WCs with washroom
- Passenger elevator
- IT cabling available
- Shared garden use
- Garage available on request
Location & Surroundings
The office is situated between U4 stations Pilgramgasse (3 minutes walk) and Kettenbrückengasse/Naschmarkt (6 minutes walk). Within 500 m you find supermarket, bakery, pharmacy, doctor, school, kindergarten, bank, and subway. Train station, tram, and shopping center are under 1 km away. The excellent infrastructure is ideal for commercial use.
Additional Information
- Net rent: €15/m², total net €3,655.14/month plus 20% VAT
- Operating costs: €345.77 + elevator €54.37 net (excl. heating/electricity)
- Energy certificate: Heating demand 18.36 kWh/m²a (Class C), FGE 0.9 kWh/m²a (Class B)
- Garage optionally rentable
Price Overview
Total Monthly Cost
15 €/m²
/monthRent
17 €
Operating Costs
-
Heating Costs
-
Other Costs
-
All amounts incl. VAT. For details on how the amounts are calculated, see price breakdown.
Security Deposit
3 Bruttomonatsmieten
Tour Request
Property Details
Key Information
Area
Rooms
Unit
Outdoor Areas
Floor
Parking Options
Flooring
Amenities
Kitchen
Energy
Heating
Heating Demand (HWB)
Overall Energy Efficiency (fGEE)
Property Floorplan

About the Provider
REAS Immobilien
REAS Immobilienhttps://www.reas.at/
Maxingstraße 12/1/4a, Wien 1130
about REAS Immobilien
48
1 Year
Price Overview
Total Monthly Cost
15 €/m²
/monthRent
17 €
Operating Costs
-
Heating Costs
-
Other Costs
-
All amounts incl. VAT. For details on how the amounts are calculated, see price breakdown.
Security Deposit
3 Bruttomonatsmieten
Price Breakdown
Tour Request
REAS Immobilien
REAS Immobilienhttps://www.reas.at/
Maxingstraße 12/1/4a, Wien 1130