














2.397 €/m²
1. Etage Büro 580m² Meidling
579,84 m²
1. Etage
10 Zimmer
Über diese Immobilie
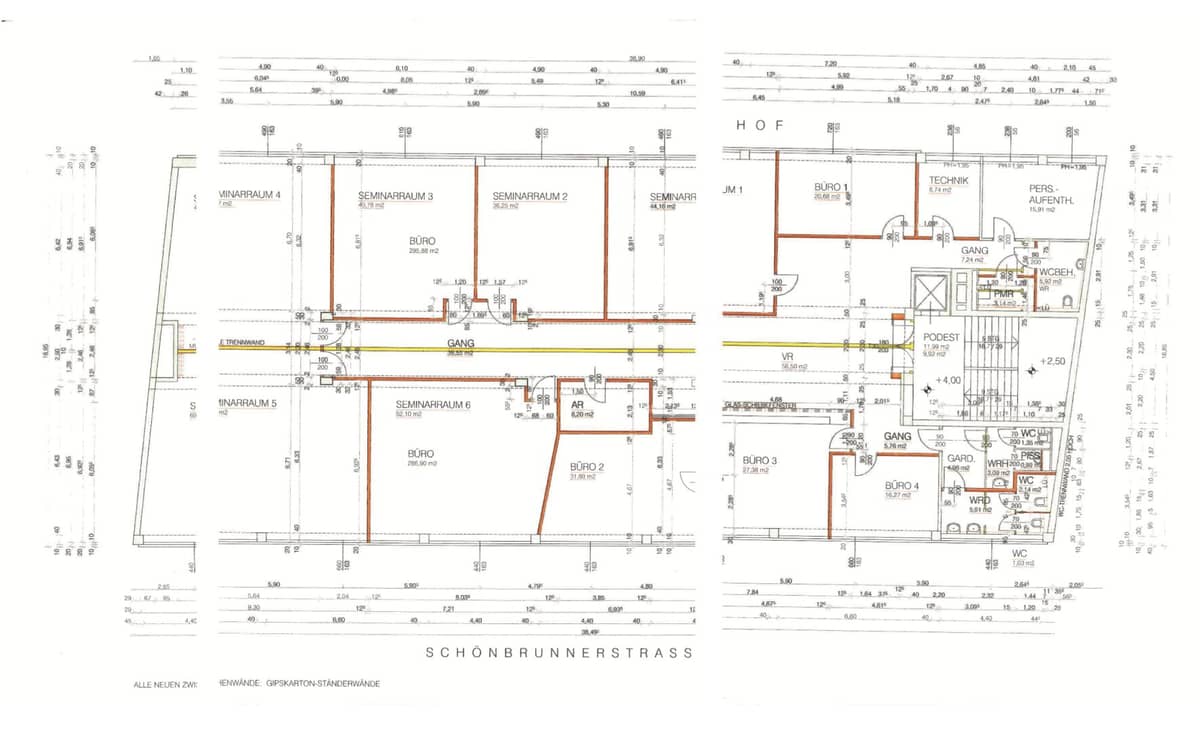
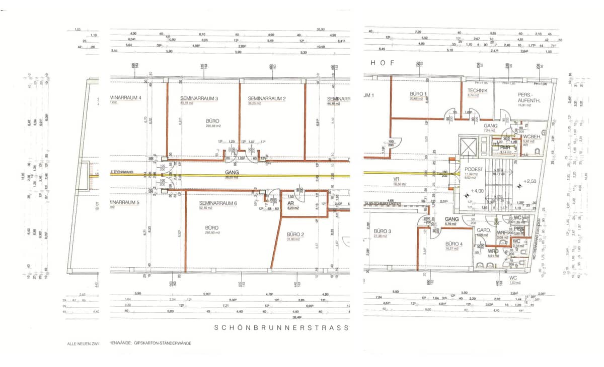
Die gesamte 1. Etage in einem Bürogebäude in der Schönbrunner Straße 213-215, Wien 12. Meidling, umfasst ca. 580 m² Nutzfläche. Das Gebäude ist neubauartig mit einer Raumhöhe von 2,60 m und bietet barrierefreien Zugang durch Personenlift und Treppenlift. Die Fläche ist straßen- und hofseitig orientiert, mit zentralem Gang für alle Räume. Derzeit gibt es einen Empfangsbereich, Sekretariat, 9 Büroräume, 4 Abstellräume, getrennte Toiletten für Damen und Herren sowie ein barrierefreies WC. Die Räume sind flexibel veränderbar, ideal für Kanzlei, Ordination, Seminarraum oder Studio. Die Ausstattung umfasst Gas-Zentralheizung und Einbauküche.
Highlights
- Ca. 580 m² Bürofläche in zentraler Lage
- 10 Zimmer, 4 Abstellräume
- Barrierefrei mit Lift und Treppenlift
- Gas-Zentralheizung
- Einbauküche und Pissoir
- Raumhöhe 2,60 m
- Flexibel veränderbare Raumaufteilung
- Energieausweis: HWB 95,13 kWh/m²a (Klasse D)
Lage & Umgebung
Die Lage in Meidling ist verkehrs- und infrastrukturell hervorragend angebunden. Nächstgelegen sind U4 und U6 an der Längenfeldgasse (unter 250 m Luftlinie), Busstation 12A sowie der Hauptbahnhof Wien Meidling. In der Nähe befinden sich Supermarkt, Bäckerei, Apotheke, Arzt, Schule und Kindergarten jeweils unter 250 m. Einkaufszentrum unter 500 m, Autobahnanschluss unter 3,25 km. Die Umgebung bietet gemischte Wohn- und Geschäftsstruktur mit Nahversorgern entlang der Schönbrunner Straße.
Zusätzliche Informationen
- Vermarktung als Kaufobjekt (Gewerbe)
- Energieeffizienz: HWB 95,13 kWh/m²a (D), F-Gee 1,61 kWh/m²a (C)
- Nebenkosten: Provision 3% zzgl. USt
Preisübersicht
Kaufpreis
2.397 €/m²
Kaufpreis
1.390.000 €
Maklerprovision
3% des Kaufpreises zzgl. 20% USt.
Tour Request
Eigenschaften
Schlüsselinformationen
Fläche
Zimmer
Gebäude
Einheit
Außenbereiche
Keller / Lagerraum
Etage
Wohnkomfort
Ausstattung
Küche
Badezimmer
Energie
Heizung
Heizwärmebedarf (HWB)
Gesamtenergieeffizienz (fGEE)
Grundriss

Über den Anbieter
Sandra Weichesmiller
WINEGG Makler GmbHhttps://www.winegg.at
Herrengasse 1-3, Wien 1010
über WINEGG Makler GmbH
1536
1 Jahr
Preisübersicht
Kaufpreis
2.397 €/m²
Kaufpreis
1.390.000 €
Maklerprovision
3% des Kaufpreises zzgl. 20% USt.
Preisdetails
Tour Request
Sandra Weichesmiller
WINEGG Makler GmbHhttps://www.winegg.at
Herrengasse 1-3, Wien 1010