











481.500 €
Moderne 3-Zimmer-Wohnung in Ohlsdorf, Neubau mit Balkon & Terrasse
88,72 m²
3 Zimmer
1 Bad
2 Schlafzimmer
Über diese Immobilie
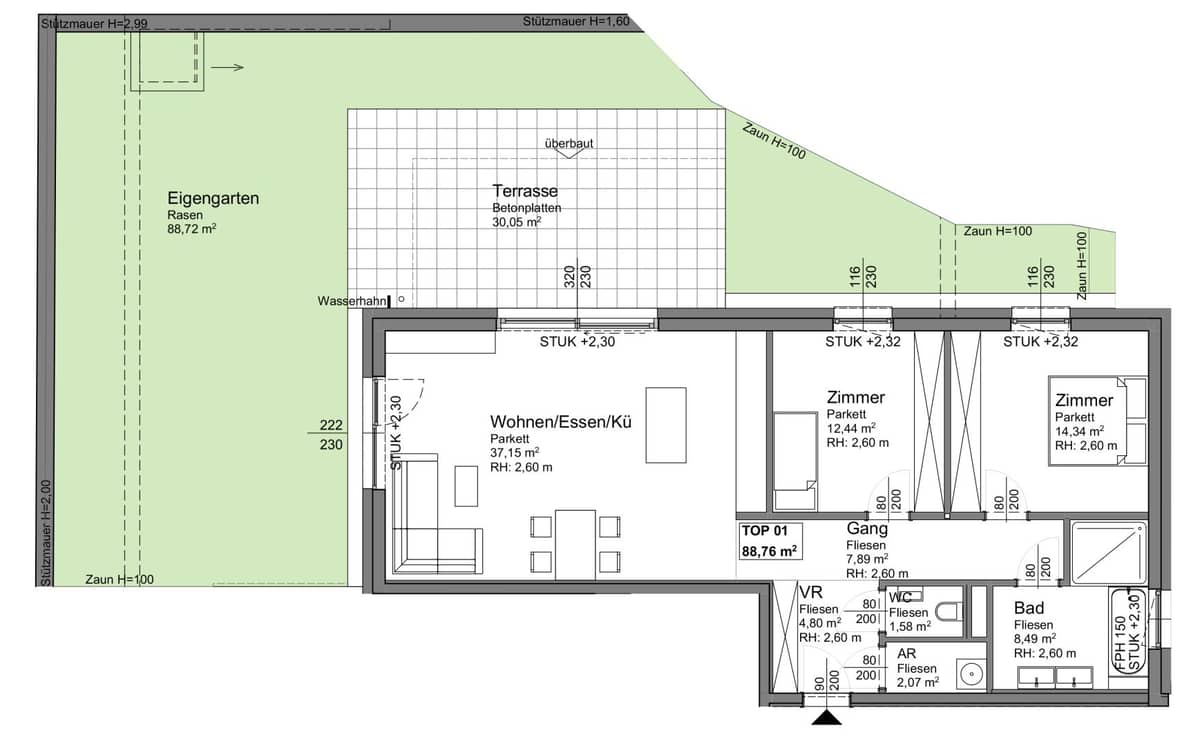
In Ohlsdorf, Angerweg 2, Top 1, entsteht eine hochwertige Eigentumswohnung im Neubauprojekt Angerweg 2. Die Einheit bietet ca. 88,72 m² Wohnfläche, 3 Zimmer und ist ein Erstbezug im Baujahr ca. 2025. Zentral gelegen mit großzügiger Terrasse.
Die Einheit besticht durch eine durchdachte Raumaufteilung in einer zeitgemäßen Bauweise. Die Fläche beträgt 88,72 m² und verteilt sich auf 3 Zimmer, darunter zwei Schlafzimmer. Zur hochwertigen Ausstattung gehören Parkettböden, Fliesen, eine Fußbodenheizung sowie eine energieeffiziente Luftwärmepumpe. Das Badezimmer ist modern gestaltet; ein separates WC ist vorhanden. Ein Highlight ist die großzügige Terrasse von 30,05 m², die direkten Zugang zum Außenbereich ermöglicht. Das Gebäude ist barrierefrei erschlossen, mit Aufzug in alle Etagen; eine Tiefgarage ist optional zu erwerben. Der Erstbezug erfolgt voraussichtlich im Jahr 2025, der Bau ist solide ausgeführt und gut isoliert. Der Heizwärmebedarf beträgt 40 kWh/m²a.
- Wohnfläche ca. 88,72 m²
- Zimmer 3
- Terrasse ca. 30,05 m²
- Hochwertige Ausstattung: Parkett, Fliesen, Fußbodenheizung
- Moderne Heiztechnik: Luftwärmepumpe (Energieeffizienz)
- Barrierefreiheit mit Aufzug, Tiefgarage optional
- Erstbezug, Baujahr ca. 2025
- Energieausweis: HWB 40 kWh/m²a
Lage & Umgebung
Ohlsdorf bietet ruhiges Wohnen in einer zentralen Lage. Die Wohnung liegt im Ortskern, Einkaufsmöglichkeiten, Schule und Nahversorgung sind in wenigen Minuten erreichbar. Die Bushaltestelle befindet sich ca. 5 Gehminuten entfernt; die Autobahn ist in wenigen Minuten erreichbar. Die Umgebung rund um den Traunsee und Traunstein bietet vielfältige Freizeitmöglichkeiten im Freien und kulturelle Angebote. Genießen Sie die Nähe zur Natur bei dennoch kurzer Wege in den urbanen Lebensraum.
Zusätzliche Informationen
- Kaufpreis: 481.500 EUR
- Provision: provisionsfrei direkt vom Bauträger
- Energieausweis: Bedarfsausweis, HWB 40 kWh/m²a
- Übergabe: Erstbezug vorgesehen, Baujahr ca. 2025
Preisübersicht
Kaufpreis
481.500 €
Kaufpreis
481.500 €
Tour Request
Eigenschaften
Schlüsselinformationen
Fläche
Zimmer
Gebäude
Einheit
Außenbereiche
Keller / Lagerraum
Etage
Parkmöglichkeiten
Wohnkomfort
Energie
Heizung
Heizwärmebedarf (HWB)
Video
Über den Anbieter
Christian Sammer
RE/MAX Traunseeüber RE/MAX Traunsee
150
8 Monaten
RE/MAX ist das weltweit führende Immobiliennetzwerk und auch in Österreich mit zahlreichen Büros flächendeckend vertreten. Mit jahrzehntelanger Erfahrung, einem starken Markenauftritt und bestens geschulten Makler:innen bietet RE/MAX professionelle Unterstützung beim Kauf, Verkauf und der Vermietung von Immobilien. Die RE/MAX Büros in Österreich stehen für Transparenz, Zuverlässigkeit und persönliche Beratung. Kund:innen profitieren nicht nur von einer großen Auswahl an aktuellen Immobilienangeboten, sondern auch von der internationalen Reichweite des Netzwerks. Dadurch erhalten Verkäufer:innen maximale Sichtbarkeit für ihre Objekte und Käufer:innen Zugang zu einem vielfältigen Markt.
Preisübersicht
Kaufpreis
481.500 €
Kaufpreis
481.500 €