












7 €/m²
/MonatGroßzügige Büroflächen in Traun, 200–900 m² flexibel nutzbar
543 m²
6 Zimmer
Über diese Immobilie
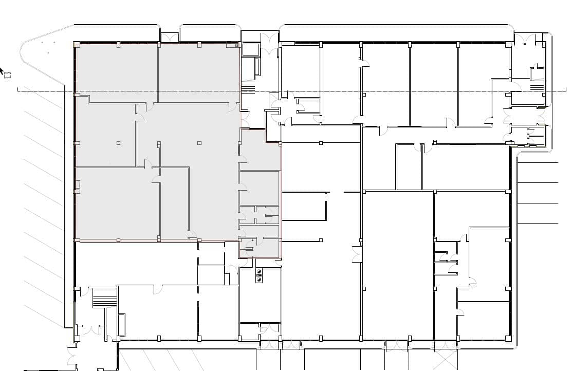
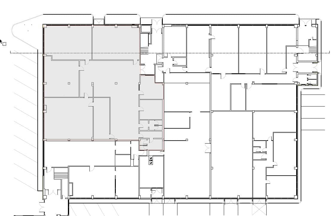
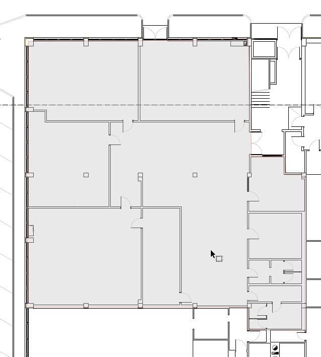
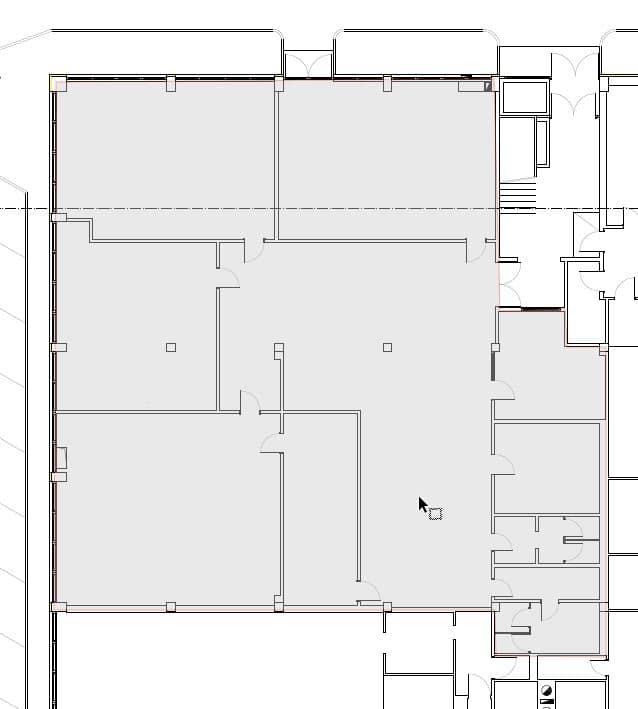
Diese großzügigen Büro- und Lagerflächen befinden sich in Traun in sehr guter Lage. Die flexible Nutzfläche reicht von 200 m² bis 900 m²; aktuell steht eine Fläche von ca. 543 m² Nutzfläche zur Verfügung. Die Erdgeschossbereiche sind barrierefrei zugänglich und eignen sich besonders für moderne Arbeitsformen.
Die Flächen lassen sich flexibel an Ihre Geschäftsanforderungen anpassen und eignen sich sowohl als Büro- als auch als Lagerflächen. Jede Einheit verfügt über separate Toilettenanlagen sowie die Option zur Einrichtung von Kaffee- oder Teeküchen und Meeting Points. Die Erdgeschossbereiche sind barrierefrei zugänglich und bieten großzügige Gangflächen. Abstellraum, DV-Verkabelung und Gartennutzung sind vorhanden und erleichtern den Arbeitsalltag. KFZ-Stellplätze stehen nach Verfügbarkeit netto 30,00 EUR pro Monat zur Anmietung bereit; ausreichend Plätze sind vorhanden. Die Anbindung an den öffentlichen Verkehr ist hervorragend: Der Trauner Bahnhof ist in ca. 10 Gehminuten erreichbar, die S-Bahn nach Linz Hbf benötigt ca. 12 Minuten; Die A7 Stadtautobahn ist ca. 7 Minuten bzw. 4,2 km entfernt.
- Flexible Büro- und Lagernutzflächen von 200–900 m²
- Nutzfläche ca. 543 m²
- Barrierefreie Erdgeschossbereiche
- Separate WC-Anlagen, Abstellraum, Kaffee-/Teeküche, Meeting Points
- DV-Verkabelung vorhanden
- Gartennutzung möglich; Stellplätze nach Verfügbarkeit (netto 30,00 EUR/Monat)
- Zentrale Heizung (Gas)
Lage & Umgebung
Die Immobilie befindet sich in Traun, einer verkehrsgünstigen Lage im Zentralraum Oberösterreich. In unmittelbarer Nähe erreichen Sie den Trauner Bahnhof in ca. 10 Gehminuten. Von dort gelangen Sie per S-Bahn in ca. 12 Minuten zum Linzer Hauptbahnhof. Die Anbindung an die A7 Stadtautobahn ist in ca. 7 Minuten bzw. 4,2 km erreichbar. In der Umgebung finden sich Nahversorgung, Restaurants und Freizeitmöglichkeiten, was kurze Wege und eine gute Infrastruktur garantiert.
Zusätzliche Informationen
- Nettokaltmiete: 3.830 EUR/Monat; Nebenkosten: 816 EUR; Gesamtmiete brutto: 5.575,20 EUR/Monat
- Kaution: 17.380,44 EUR
- Provisionspflichtig: 3 BMM zzgl. USt
- Verfügbarkeit: nach Vereinbarung
- Stellplätze: nach Verfügbarkeit, netto 30 EUR/Monat pro Platz
Preisübersicht
Gesamtbelastung
7 €/m²
/MonatMiete
4.213 €
Betriebskosten
979 €
Heizkosten
-
Andere Kosten
-
Alle Beträge inkl. MwSt. Details zur Herkunft der Werte findest du in den Preisdetails.
Kaution
-
Tour Request
Eigenschaften
Schlüsselinformationen
Fläche
Zimmer
Einheit
Außenbereiche
Keller / Lagerraum
Parkmöglichkeiten
Wohnkomfort
Ausstattung
Küche
Badezimmer
Energie
Heizung
Über den Anbieter
Helmut Ries
Zeininger Immobilien GmbHhttps://www.zeininger.immobilien/
Harrachstraße 4, 3. Stock, Linz 4020
über Zeininger Immobilien GmbH
310
3 Monaten
Preisübersicht
Gesamtbelastung
7 €/m²
/MonatMiete
4.213 €
Betriebskosten
979 €
Heizkosten
-
Andere Kosten
-
Alle Beträge inkl. MwSt. Details zur Herkunft der Werte findest du in den Preisdetails.
Kaution
-
Preisdetails
Tour Request
Helmut Ries
Zeininger Immobilien GmbHhttps://www.zeininger.immobilien/
Harrachstraße 4, 3. Stock, Linz 4020