











22 €/m²
/MonatZentrales Büro in Innsbruck, 131,9 m², 5 Räume, Teeküche, Innenstadt
131,9 m²
1
5 Zimmer
Über diese Immobilie
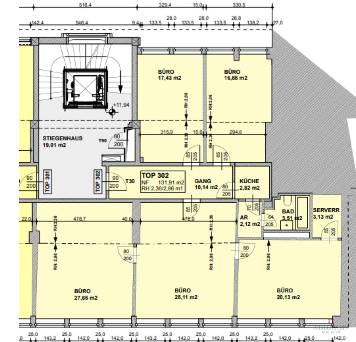
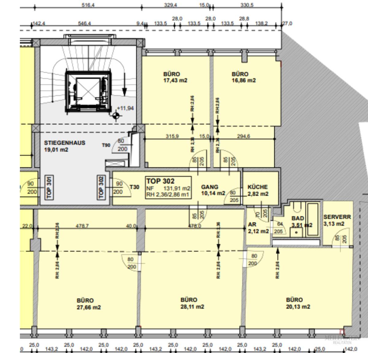
Diese Bürofläche befindet sich in der zentralen Innenstadt von Innsbruck. Die Einheit umfasst 131,9 m² Nutzfläche, aufgeteilt in 5 Räume mit Teeküche und Serverraum. Sie liegt im 3. Obergeschoss eines gepflegten Bürohauses und ist sofort verfügbar.
Die Bürofläche liegt im 3. Obergeschoss eines gepflegten Bürohauses nahe dem Hauptbahnhof (HBF) und dem Bozner Platz. Sie bietet fünf abgetrennte Büros, eine Teeküche, ein WC, einen Serverraum und eine kleine Abstellkammer. Der Bodenbelag besteht aus Fliesen; die Heizung erfolgt zentral über Öl. Ein Personenaufzug sorgt für leichten Zugang. Autoabstellplätze können auf Anfrage bereitgestellt werden. Die Anmietung erfolgt ab sofort.
- 131,9 m² Nutzfläche
- 5 Büroflächen
- Teeküche
- WC
- Serverraum
- Aufzug vorhanden
- Fliesenboden
- Zentrale Innenstadtlage
Lage & Umgebung
Die Lage überzeugt durch eine hervorragende Infrastruktur: In der unmittelbaren Umgebung finden sich Gastronomie, Handel und Dienstleister. Öffentliche Verkehrsmittel sind gut erreichbar, und Hauptbahnhof sowie Bozner Platz befinden sich in fußläufiger Nähe (ca. 5–7 Gehminuten). Nahversorger, Banken und Behörden sind bequem erreichbar. Freizeitmöglichkeiten und kulturelle Angebote befinden sich ebenfalls in der Umgebung, was die Lage besonders attraktiv macht.
Zusätzliche Informationen
- Kaltmiete: 2.076,52 EUR; Nebenkosten: 355,58 EUR; Heizkosten: 228,71 EUR; Warmmiete: 2.863,80 EUR
- Kaution: 3 Bruttomonatsmieten
- Verfügbar ab: sofort
- Mietdauer: min. 3 Jahre, max. 10 Jahre
Preisübersicht
Gesamtbelastung
22 €/m²
/MonatMiete
1.903 €
Betriebskosten
356 €
Heizkosten
-
Andere Kosten
86 €
Alle Beträge inkl. MwSt. Details zur Herkunft der Werte findest du in den Preisdetails.
Kaution
3 BMM
Tour Request
Eigenschaften
Schlüsselinformationen
Fläche
Zimmer
Gebäude
Einheit
Mietdetails
Etage
Boden
Ausstattung
Küche
Energie
Heizung
Grundriss

Über den Anbieter
Christoph Rudel
Meilenstein Realitäten GmbHhttps://www.meilenstein.co.at/#/
Maria-Theresien-Straße 34, Innsbruck 6020
über Meilenstein Realitäten GmbH
141
3 Monaten
Preisübersicht
Gesamtbelastung
22 €/m²
/MonatMiete
1.903 €
Betriebskosten
356 €
Heizkosten
-
Andere Kosten
86 €
Alle Beträge inkl. MwSt. Details zur Herkunft der Werte findest du in den Preisdetails.
Kaution
3 BMM
Preisdetails
Tour Request
Christoph Rudel
Meilenstein Realitäten GmbHhttps://www.meilenstein.co.at/#/
Maria-Theresien-Straße 34, Innsbruck 6020