












12 €/m²
/MonatBarrierefreie Praxisräume Wien 1190
67,48 m²
2 Zimmer
Über diese Immobilie
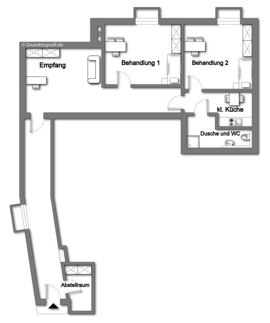
In ruhiger Lage im 19. Bezirk Wiens in der Scheimpfluggasse werden barrierefreie Praxisräumlichkeiten vermietet. Das Objekt aus dem Baujahr 2004 umfasst 67,48 m² Nutzfläche mit 2 Räumen und befindet sich im Erdgeschoss, das durch die Hanglage de facto im Kellergeschoß liegt. Die Räume sind in gepflegtem Zustand und eignen sich ideal für Therapeuten, Masseure oder eine Privatordination. Die Aufteilung besteht aus zwei getrennt begehbaren Therapieräumen, einem Empfangs- bzw. Wartebereich, einer möblierten Teeküche, einem Badezimmer mit Dusche, WC und Waschmaschinenanschluss sowie einem Abstellraum. Natürliches Tageslicht erfolgt über Oberlichter, ergänzt durch gute künstliche Beleuchtung. Der ebenerdige Zugang ist barrierefrei, das WC jedoch nicht rollstuhlgerecht. Die Zentralheizung auf Gasbasis sorgt für angenehmes Raumklima.
Highlights
- Barrierefrei erreichbar
- 2 Therapieräume
- Möblierte Teeküche
- Badezimmer mit Dusche und WC
- Abstellraum
- Zentralheizung (Gas)
- Energieeffizienzklasse B (47 kWh/m²a)
- Gepflegter Zustand
Lage & Umgebung
Die Praxis liegt in ruhiger Lage in Döbling. Buslinie 39A an der Haltestelle Scheimpfluggasse ist nur wenige Minuten zu Fuß entfernt und führt direkt zur U4-Station Heiligenstadt. Weitere Busse wie 10A und 38A sind in der Nähe. Das Stadtzentrum ist in ca. 15 Minuten mit öffentlichen Verkehrsmitteln erreichbar. In der Umgebung befinden sich Supermarkt, Bäckerei, Schule, Kindergarten, Arzt und Apotheke jeweils unter 500 m Luftlinie entfernt. Parkmöglichkeiten gibt es in der Kurzparkzone.
Zusätzliche Informationen
- Miete inkl. Betriebs- und Heizkostenakonto: 1.023,44 EUR
- Kaution: 3.070,32 EUR
- Verfügbar ab: sofort
- Energieausweis: B (47 kWh/m²a, gültig bis 2029)
Preisübersicht
Gesamtbelastung
12 €/m²
/MonatMiete
500 €
Betriebskosten
289 €
Heizkosten
-
Andere Kosten
-
Alle Beträge inkl. MwSt. Details zur Herkunft der Werte findest du in den Preisdetails.
Kaution
3.070 €
Tour Request
Eigenschaften
Schlüsselinformationen
Fläche
Zimmer
Gebäude
Einheit
Mietdetails
Keller / Lagerraum
Etage
Parkmöglichkeiten
Wohnkomfort
Ausstattung
Küche
Sonstiges
Energie
Heizung
Heizwärmebedarf (HWB)
Dokumente
Über den Anbieter
Claudia Lang
RE/MAX Welcome Hornyik Immobilienmakler GmbH&CoKGüber RE/MAX Welcome Hornyik Immobilienmakler GmbH&CoKG
70
2 Tagen
Preisübersicht
Gesamtbelastung
12 €/m²
/MonatMiete
500 €
Betriebskosten
289 €
Heizkosten
-
Andere Kosten
-
Alle Beträge inkl. MwSt. Details zur Herkunft der Werte findest du in den Preisdetails.
Kaution
3.070 €
Preisdetails