












13 €/m²
/MonatHelles Altbau-Büro im 1. Bezirk am Parkring 130 m², 6 großzügige Räume
130,89 m²
4. Etage
6 Zimmer
Über diese Immobilie
Dieses helle Altbau-Büro befindet sich im 1. Wiener Gemeindebezirk, direkt am Parkring gegenüber dem Stadtpark.
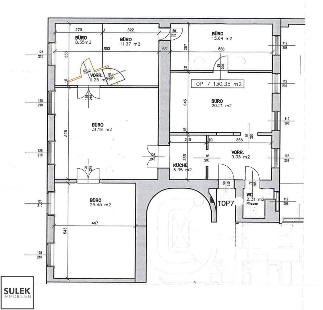
Die Büroeinheit liegt im 4. Stock eines gepflegten Altbaus aus dem Jahr 1937 und bietet ca. 130 m² Nutzfläche. Die Aufteilung umfasst 6 unterschiedlich große Büroräume sowie einen zentralen Besprechungsraum – ideal für Teams jeder Größe.
Die Einheit verfügt über einen Vorraum, sechs helle Büroräume unterschiedlicher Größe sowie einen großen Besprechungsraum als Herzstück.
Die Bodenbeläge bestehen aus Fliesen und Parkett und der Zustand ist gepflegt, typisch für einen Altbau. Eine praktische Gasetagenheizung sorgt für behagliche Wärme; Heizkosten sind in der Miete enthalten.
Zur Ausstattung gehört ein WC mit Fenster zum Lüften. Die Immobilie befindet sich in einem repräsentativen Altbau aus dem Jahr 1937 und bietet eine gepflegte Infrastruktur inklusive Aufzug.
Die Anmietung ist optional auf 10 Jahre befristet und nach Absprache verfügbar. Ein Energieausweis liegt vor (HWB 103,3 kWh/m²a, Klasse D).
Highlights
- Ca. 130 m² Nutzfläche
- 6 Büroräume inkl. Vorraum
- Großes Besprechungszimmer als Herzstück
- Altbau-Charme, gepflegt
- Böden: Fliesen und Parkett
- Aufzug vorhanden
- Gasetagenheizung; Heizkosten in der Miete enthalten
- Energieausweis HWB 103,3 kWh/m²a (Klasse D)
Lage & Umgebung
Die Liegenschaft befindet sich in Bestlage des 1. Wiener Gemeindebezirkes, am Parkring direkt gegenüber dem Stadtpark, einer der begehrtesten Adressen der Innenstadt.
In ca. 10 Gehminuten erreichen Sie den Stephansplatz mit vielfältigen Einkaufsmöglichkeiten, Restaurants und kulturellen Angeboten.
Die Anbindung an den öffentlichen Nahverkehr ist exzellent: U4 Stadtpark ca. 450 m (ca. 3 Gehminuten); U3 Stubentor ca. 250 m (ca. 3 Gehminuten).
Straßenbahnlinien 1, 2, 71 und D sind in wenigen Gehminuten erreichbar; Wien Mitte (CAT, S-Bahn, U3/U4) ca. 700 m (ca. 9–10 Gehminuten).
Zusätzliche Informationen
- Nettomiete kalt: 1.743,09 EUR/Monat; Betriebskosten netto: 284,90 EUR/Monat; Gesamtbelastung netto: 2.054,69 EUR/Monat
- Kaution: 3 Bruttomonatsmieten
- Provision: 3 Bruttomonatsmieten zzgl. 20% USt.
- Energieausweis: HWB 103,3 kWh/m²a, Bedarfsausweis, Klasse D
Preisübersicht
Gesamtbelastung
13 €/m²
/MonatMiete
1.917 €
Betriebskosten
376 €
Heizkosten
-
Andere Kosten
32 €
Alle Beträge inkl. MwSt. Details zur Herkunft der Werte findest du in den Preisdetails.
Kaution
3 Bruttomonatsmieten
Tour Request
Eigenschaften
Schlüsselinformationen
Fläche
Zimmer
Gebäude
Einheit
Mietdetails
Etage
Boden
Ausstattung
Küche
Energie
Heizung
Kühlung
Heizwärmebedarf (HWB)
Gesamtenergieeffizienz (fGEE)
Grundriss

Über den Anbieter
Philipp Renner
Mittelsmann Philipp Sulek GmbHhttps://www.sulek.immobilien/
Ameisgasse 10,, Wien 1140
über Mittelsmann Philipp Sulek GmbH
157
11 Monaten
Preisübersicht
Gesamtbelastung
13 €/m²
/MonatMiete
1.917 €
Betriebskosten
376 €
Heizkosten
-
Andere Kosten
32 €
Alle Beträge inkl. MwSt. Details zur Herkunft der Werte findest du in den Preisdetails.
Kaution
3 Bruttomonatsmieten
Preisdetails
Tour Request
Philipp Renner
Mittelsmann Philipp Sulek GmbHhttps://www.sulek.immobilien/
Ameisgasse 10,, Wien 1140