











808 €
/Monat2-Zimmer-Wohnung in Seitenstetten Markt mit Balkon und Küche
55,5 m²
1
2 Zimmer
1 Bad
1 Schlafzimmer
Über diese Immobilie
Einleitung
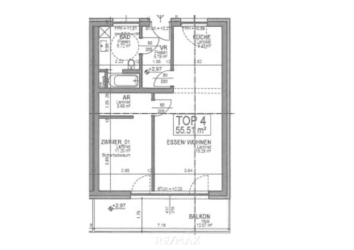
Diese Mietwohnung befindet sich in Seitenstetten Markt, im 1. Obergeschoss eines gepflegten Gebäudes. Die ca. 55,5 m² Wohnfläche verteilen sich auf 2 Zimmer, eine Wohnküche sowie Balkon; verfügbar ab April 2026.
Detaillierte Objektbeschreibung
Die Wohnung liegt im 1. Obergeschoss eines gepflegten Mehrparteienhauses und bietet ca. 55,5 m² Wohnfläche auf 2 Zimmer. Zur Ausstattung gehören eine Wohnküche, ein Badezimmer mit WC, sowie ein Balkon von ca. 12,5 m². Die Küche ist möbliert, eine Ablöse ist nicht erforderlich. Die Beheizung erfolgt zentral über Fernwärme. Im Mietpreis enthalten ist ein freier Pkw-Abstellplatz sowie ein Kellerersatzraum. Die Baujahresangabe ist ca. 2016; die Vermietung erfolgt ab April 2026; der Mietvertrag ist befristet auf 5 Jahre.
Highlights
- Balkonfläche ca. 12,5 m²
- Wohnfläche ca. 55,5 m²
- 2 Zimmer inklusive Wohnküche
- Küche möbliert, keine Ablöse
- Zentralheizung mit Fernwärme
- Freier Pkw-Abstellplatz
- Energieausweis HWB 40,6 kWh/(m²a), Klasse B
Lage & Umgebung
Zentrumsnahe Lage in Seitenstetten Markt mit guter Infrastruktur. Der Bahnhof ist nur wenige Fahrminuten entfernt; Einkaufsmöglichkeiten, Ärzte und Freizeitangebote befinden sich in der Umgebung. Die Anbindung an öffentliche Verkehrsmittel ist gut, und das Stadtzentrum ist fuß- bzw. fahrbar erreichbar. In wenigen Gehminuten erreicht man zentrale Einrichtungen und Freizeitmöglichkeiten.
Zusätzliche Informationen
- Kaution: €2.500,00
- Verfügbar ab: April 2026; Mietdauer befristet auf 5 Jahre
- Energieausweis: HWB 40,6 kWh/(m²a), Klasse B
- Gesamtbelastung brutto: €807,70 monatlich
Preisübersicht
Gesamtbelastung
808 €
/MonatMiete
504 €
Betriebskosten
241 €
Heizkosten
-
Andere Kosten
-
Alle Beträge inkl. MwSt. Details zur Herkunft der Werte findest du in den Preisdetails.
Kaution
-
Tour Request
Eigenschaften
Schlüsselinformationen
Fläche
Zimmer
Einheit
Außenbereiche
Keller / Lagerraum
Etage
Parkmöglichkeiten
Extras
Ausstattung
Küche
Energie
Heizung
Heizwärmebedarf (HWB)
Gesamtenergieeffizienz (fGEE)
Über den Anbieter
Daniela Mayrhofer
RE/MAX Immo-Team in Amstettenüber RE/MAX Immo-Team in Amstetten
114
7 Monaten
RE/MAX ist das weltweit führende Immobiliennetzwerk und auch in Österreich mit zahlreichen Büros flächendeckend vertreten. Mit jahrzehntelanger Erfahrung, einem starken Markenauftritt und bestens geschulten Makler:innen bietet RE/MAX professionelle Unterstützung beim Kauf, Verkauf und der Vermietung von Immobilien. Die RE/MAX Büros in Österreich stehen für Transparenz, Zuverlässigkeit und persönliche Beratung. Kund:innen profitieren nicht nur von einer großen Auswahl an aktuellen Immobilienangeboten, sondern auch von der internationalen Reichweite des Netzwerks. Dadurch erhalten Verkäufer:innen maximale Sichtbarkeit für ihre Objekte und Käufer:innen Zugang zu einem vielfältigen Markt.
Preisübersicht
Gesamtbelastung
808 €
/MonatMiete
504 €
Betriebskosten
241 €
Heizkosten
-
Andere Kosten
-
Alle Beträge inkl. MwSt. Details zur Herkunft der Werte findest du in den Preisdetails.
Kaution
-
Preisdetails