










1.022 €
/Monat3-Zimmer-Wohnung mit Loggia in Stockerau
62,31 m²
1
3 Zimmer
1 Bad
Über diese Immobilie
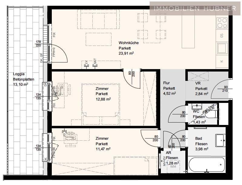
Diese fast neue 3-Zimmer-Wohnung mit 62,31 m² Wohnfläche liegt im 1. Stock in Stockerau, Niederösterreich. Erbaut 2024 mit Erstbezug ab Juli 2026 bietet sie eine Loggia von 13,1 m², Deckenkühlung und moderne Ausstattung. Die Wohnung umfasst einen geräumigen Vorraum, zwei Schlafzimmer, Wohnraum mit Küchenzeile, Wannenbad, separates WC und Abstellraum. Parkett in Eiche, 3-Scheiben-Isolierverglasung, elektrische Außenrollläden und eine Farb-Video-Gegensprechanlage sorgen für Komfort. Die Zentralheizung mit Fernwärme und passive Kühlung durch die Betondecke gewährleisten ein angenehmes Raumklima. Die hochwertige Lutz-Küche ist mit Kühlschrank, Gefrierfach, Geschirrspüler und Einbauherd ausgestattet. Feinsteinzeug im Bad und Waschmaschinenanschluss vervollständigen die Ausstattung.
- Loggia mit 13,1 m²
- Parkettboden in Eiche
- Moderne Einbauküche mit Lutz-Ausstattung
- Deckenkühlung und Zentralheizung mit Fernwärme
- 3-Scheiben-Isolierverglasung
- Elektrische Außenrollläden
- Farb-Video-Gegensprechanlage
- Waschmaschinenanschluss
Lage & Umgebung
Die Wohnung liegt im Stadtzentrum von Stockerau, umgeben von Grünflächen. Das Naturschutzgebiet Stockerauer Au ist in 7 Minuten zu Fuß erreichbar, ideal für Spaziergänge, Joggen oder Radfahren. Die Donauuferautobahn ist in der Nähe, ebenso Nahversorger, Shops, Schulen und das Landesklinikum. Öffentliche Verkehrsmittel wie S3 und S4 der Wiener Schnellbahn sind gut erreichbar, mit 40 Minuten Zugfahrt zum Wien Hbf. Es gibt Park & Ride Anlagen, nextbike-Verleih und E-Tankstellen in der Umgebung.
Zusätzliche Informationen
- Kaltmiete: 769,18 € zzgl. 10% USt.
- Betriebskosten: 159,87 € zzgl. 10% USt., Gesamtkosten ca. 1.022 €
- Erstzahlung: 3 Monatsmieten Kaution plus Miete im Voraus
- Energieausweis: Heizwärmebedarf 21,1 kWh/m²a (Klasse A), FGE 0,71 (A+)
- Verfügbar ab Juli 2026
Preisübersicht
Gesamtbelastung
1.022 €
/MonatMiete
846 €
Betriebskosten
176 €
Heizkosten
-
Andere Kosten
-
Alle Beträge inkl. MwSt. Details zur Herkunft der Werte findest du in den Preisdetails.
Kaution
-
Tour Request
Eigenschaften
Schlüsselinformationen
Fläche
Zimmer
Gebäude
Einheit
Außenbereiche
Keller / Lagerraum
Etage
Extras
Wohnkomfort
Boden
Ausstattung
Küche
Sonstiges
Energie
Heizung
Kühlung
Heizwärmebedarf (HWB)
Gesamtenergieeffizienz (fGEE)
Dokumente
Über den Anbieter
Anette Mazanec
Hubner Immobilien GmbHhttps://www.hubner-immobilien.com
Fred-Zinnemann-Platz 4/3.2, Wien 1030
über Hubner Immobilien GmbH
177
1 Jahr
Preisübersicht
Gesamtbelastung
1.022 €
/MonatMiete
846 €
Betriebskosten
176 €
Heizkosten
-
Andere Kosten
-
Alle Beträge inkl. MwSt. Details zur Herkunft der Werte findest du in den Preisdetails.
Kaution
-
Preisdetails
Tour Request
Anette Mazanec
Hubner Immobilien GmbHhttps://www.hubner-immobilien.com
Fred-Zinnemann-Platz 4/3.2, Wien 1030