


















1.199 €
/MonatErstbezug: 3-Zimmer-Wohnung mit großer Terrasse in Krems an der Donau
73,13 m²
EG
3 Zimmer
Über diese Immobilie
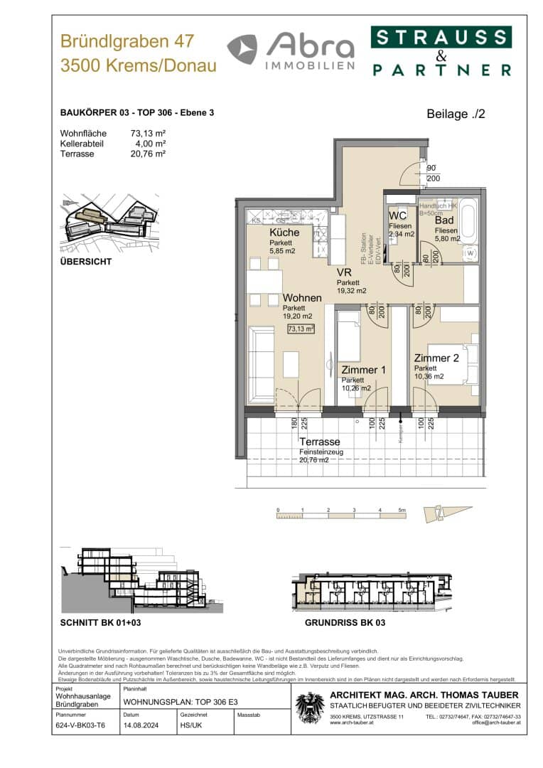
Diese moderne Neubauwohnung im Erdgeschoss liegt in Krems an der Donau (Bründlgraben 45A). Die ca. 73,13 m² Wohnfläche verteilen sich auf drei Zimmer und eine großzügige Terrasse von ca. 20,76 m². Der Erstbezug erfolgt im Jahr 2025.
Aufgeteilt ist die Wohnung in einen offenen Wohn- und Essbereich, zwei Schlafzimmer sowie ein weiteres Zimmer, ideal als Arbeits- oder Gästezimmer. Eine Einbauküche ist vorhanden. Bodennaher Parkett in Natureiche sowie Fliesen in den Nassräumen prägen die hochwertige Ausstattung. Die Beheizung erfolgt über Fernwärme mit Fußbodenheizung; eine Klimatisierung im DG ist optional möglich. Zur Wohnung gehört eine Außenfläche von 20,76 m² (Terrasse) sowie ein Kellerabteil. Das Gebäude ist massiv gebaut und verfügt über einen Aufzug.
- 3 Zimmer und ca. 73,13 m² Wohnfläche
- Terrasse 20,76 m² als sonniger Außenbereich
- Küche mit Einbauküche (EBK) inklusive
- Fußbodenheizung und Fernwärme sorgen für behagliche Wärme
- Parkettboden in Natureiche und hochwertige Fliesen in Nassräumen
- Aufzug im Gebäude
- Massivbauweise
- EG-Lage mit barrierefreiem Zugang
Lage & Umgebung
Die Wohnung befindet sich in Krems an der Donau, am Bründlgraben 45A, im Erdgeschoss einer modernen Neubauanlage. Die Umgebung bietet Grün- und Weinberge sowie kurze Wege in die Innenstadt. Nahversorgung ist fußläufig erreichbar: Supermarkt ca. 6–8 Gehminuten, Bäckerei ca. 8–10 Gehminuten, Einkaufszentrum ca. 7–8 Fahrminuten mit dem Auto; Ärzte, Apotheke und Universitäten befinden sich in der Nähe. Die Anbindung an den öffentlichen Nahverkehr ist gut: Bushaltestellen vor Ort; der Bahnhof Krems ist ca. 1,7 km entfernt (ca. 15–20 Gehminuten); Autobahnanschluss in ca. 5–7 Minuten mit dem Auto. Krems bietet Kultur, Bildungseinrichtungen und eine hohe Lebensqualität.
Zusätzliche Informationen
- Miete Brutto 1.199,00 EUR/Monat
- Kaution 3.600,00 EUR
- Betriebskosten netto 182,83 EUR/Monat
- Energieausweis: Bedarf, HWB 23,5 kWh/m²a, Klasse B; gültig bis 2032-11-19
Preisübersicht
Gesamtbelastung
1.199 €
/MonatMiete
998 €
Betriebskosten
201 €
Heizkosten
-
Andere Kosten
-
Alle Beträge inkl. MwSt. Details zur Herkunft der Werte findest du in den Preisdetails.
Kaution
3.600 €
Tour Request
Eigenschaften
Schlüsselinformationen
Fläche
Zimmer
Gebäude
Einheit
Außenbereiche
Keller / Lagerraum
Etage
Extras
Wohnkomfort
Boden
Ausstattung
Küche
Sonstiges
Energie
Heizung
Kühlung
Heizwärmebedarf (HWB)
Gesamtenergieeffizienz (fGEE)
Gebäudezertifikate
Grundriss

Dokumente
Über den Anbieter
Andreas Stadler
ABRA IC GmbHhttps://abra.at/
Höhnegasse 20/3, Wien 1180
über ABRA IC GmbH
51
3 Monaten
Preisübersicht
Gesamtbelastung
1.199 €
/MonatMiete
998 €
Betriebskosten
201 €
Heizkosten
-
Andere Kosten
-
Alle Beträge inkl. MwSt. Details zur Herkunft der Werte findest du in den Preisdetails.
Kaution
3.600 €
Preisdetails
Tour Request
Andreas Stadler
ABRA IC GmbHhttps://abra.at/
Höhnegasse 20/3, Wien 1180