








775 €
/MonatGartenwohnung in Lanzenkirchen mit Terrasse, Tiefgarage & ruhiger Lage
55 m²
2 Zimmer
1 Bad
Über diese Immobilie
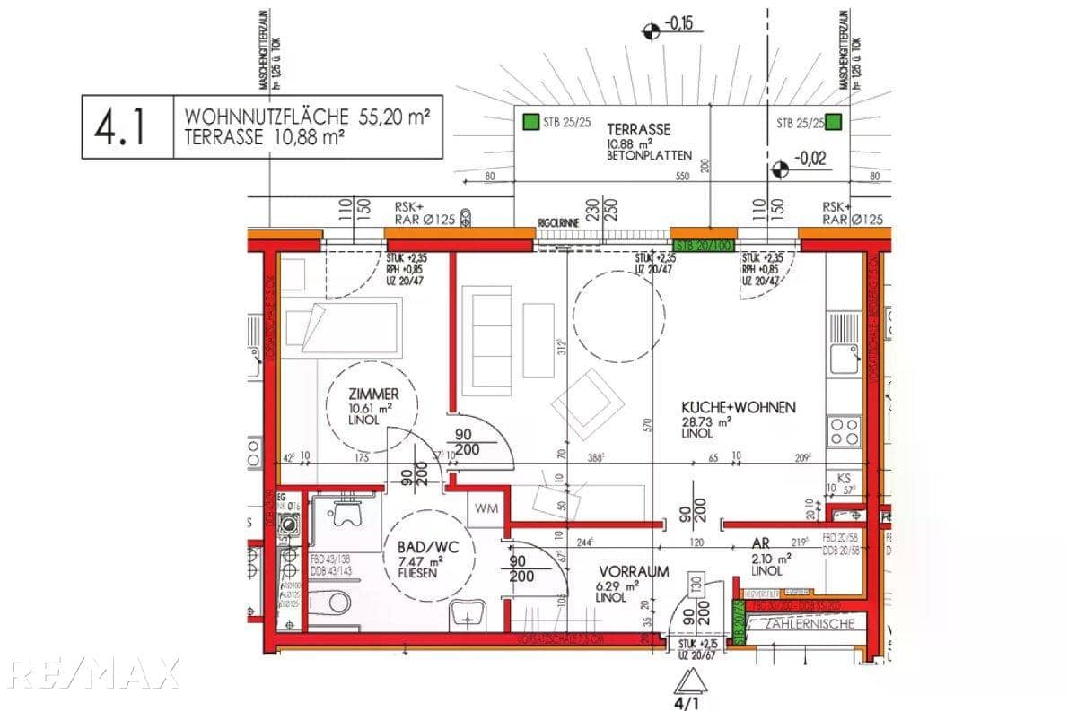
Diese betreubare Gartenwohnung in Lanzenkirchen bietet ca. 55 m² Wohnfläche in einem offenen Grundriss. Die 2-Zimmer-Wohnung verfügt über eine Wohnküche, einen eigenen Gartenanteil von ca. 58 m² sowie eine Terrasse von ca. 10,88 m². Baujahr ca. 2011, ausgestattet mit Fußbodenheizung, Lift sowie rollstuhlgerechter Ausstattung.
Der Grundriss bietet eine offene Wohnküche mit durchdachter Nutzbarkeit. Die zwei Zimmer ermöglichen flexible Wohn- und Rückzugsbereiche. Zur Ausstattung gehören Fußbodenheizung und eine kontrollierte Wohnraumlüftung sowie ein modernes Bad mit Bad/WC. Die Einheit ist rollstuhlgerecht und verfügt über einen Aufzug, der den Zugang erleichtert. Zusätzlich steht ein Einlagerungsraum sowie ein Tiefgaragenplatz zur Verfügung. Die gepflegte Bauweise aus ca. 2011 vermittelt Wohnkomfort auf aktuellem Standard.
- Offene Wohnküche mit 2 Zimmern
- Gartenanteil ca. 58 m² und Terrasse ca. 10,88 m²
- Fußbodenheizung und kontrollierte Wohnraumlüftung
- Tiefgaragenplatz und Aufzug vorhanden
- Rollstuhlgerecht
- Gesamtmiete brutto 775 EUR
- Zentrale Lage nahe Zentrum Lanzenkirchen
Lage & Umgebung
Die geförderte seniorengerechte Wohnhausanlage liegt in Lanzenkirchen, südlich von Wiener Neustadt, in einer Umgebung mit ländlicher Idylle und guter Erreichbarkeit. Lanzenkirchen gehört zum Industrieviertel Niederösterreich und bietet eine ruhige Infrastruktur nahe dem Rosaliengebirge. Die Nähe zum Zentrum ermöglicht kurze Wege zu Einkaufsmöglichkeiten, Ärzten und öffentlichen Einrichtungen. Freizeitmöglichkeiten im Grünen runden das Angebot ab.
Zusätzliche Informationen
- Gesamtmiete brutto: 775 EUR pro Monat
- Verfügbarkeit: ab sofort
- Tiefgaragenplatz vorhanden
- Energieausweis: Bedarfsausweis, HWB 34,2 kWh/(m²a), Klasse B
Preisübersicht
Gesamtbelastung
775 €
/MonatMiete
775 €
Betriebskosten
-
Heizkosten
-
Andere Kosten
-
Alle Beträge inkl. MwSt. Details zur Herkunft der Werte findest du in den Preisdetails.
Kaution
-
Tour Request
Eigenschaften
Schlüsselinformationen
Fläche
Zimmer
Gebäude
Einheit
Außenbereiche
Keller / Lagerraum
Etage
Parkmöglichkeiten
Wohnkomfort
Energie
Heizung
Heizwärmebedarf (HWB)
Gesamtenergieeffizienz (fGEE)
Dokumente
Über den Anbieter
Otto Spiess
RE/MAX Welcome in Badenüber RE/MAX Welcome in Baden
68
7 Monaten
RE/MAX ist das weltweit führende Immobiliennetzwerk und auch in Österreich mit zahlreichen Büros flächendeckend vertreten. Mit jahrzehntelanger Erfahrung, einem starken Markenauftritt und bestens geschulten Makler:innen bietet RE/MAX professionelle Unterstützung beim Kauf, Verkauf und der Vermietung von Immobilien. Die RE/MAX Büros in Österreich stehen für Transparenz, Zuverlässigkeit und persönliche Beratung. Kund:innen profitieren nicht nur von einer großen Auswahl an aktuellen Immobilienangeboten, sondern auch von der internationalen Reichweite des Netzwerks. Dadurch erhalten Verkäufer:innen maximale Sichtbarkeit für ihre Objekte und Käufer:innen Zugang zu einem vielfältigen Markt.
Preisübersicht
Gesamtbelastung
775 €
/MonatMiete
775 €
Betriebskosten
-
Heizkosten
-
Andere Kosten
-
Alle Beträge inkl. MwSt. Details zur Herkunft der Werte findest du in den Preisdetails.
Kaution
-
Preisdetails