






1.480 €
/Monat3-Zimmer-Wohnung Elsbethen, 82m²
82,67 m²
2. Etage / Dachgeschoss
3 Zimmer
1 Bad
Über diese Immobilie
Einführung
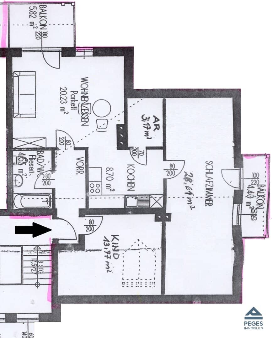
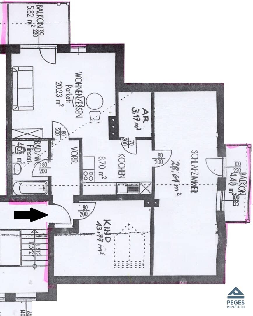
Die gepflegte 3-Zimmer-Wohnung mit 82,67 m² Wohnfläche liegt im sonnigen Süden Salzburgs in Elsbethen. Erbaut 1992, befindet sie sich im 2. Obergeschoss eines privaten Mietwohnhauses ohne Aufzug. Zu der Wohnung gehören zwei Balkone mit insgesamt 10,22 m², ein Tiefgaragenstellplatz, ein Kellerabteil und ein Abstellraum. Die Wohnung ist in ordentlichem, gepflegtem Zustand mit Parkettböden in den Wohnräumen und hellen Fliesen im Bad und WC. Das offene Wohnzimmer ist mit einer Einbauküche inklusive Geschirrspüler ausgestattet und bietet Zugang zum westlich ausgerichteten Balkon. Das Schlafzimmer verfügt über einen nördlich ausgerichteten Balkon, ergänzt wird die Raumaufteilung durch ein Kinder- oder Arbeitszimmer, Vorraum, Bad mit Badewanne und Waschmaschinenanschluss sowie ein separates WC. Die Zentralheizung mit Gas und Boiler für Warmwasser sorgt für Komfort.
Highlights:
- Geprägter Zustand, Baujahr 1992
- Einbauküche mit Geschirrspüler (offen)
- Parkettböden und Fliesen im Bad/WC
- Zwei Balkone (Nord- und Westausrichtung)
- Zentralheizung (Gas)
- Tiefgaragenstellplatz
- Kellerabteil und Abstellraum
- Waschküche im Haus
Lage & Umgebung
Die Wohnung liegt in ruhiger, sonniger Lage in der Schloßstraße nahe dem Gemeindezentrum und Schloss Goldenstein sowie dem Red Bull HQ. Bus- und S-Bahn-Station sind weniger als 500 m entfernt, die Autobahnauffahrt in unter 3,5 Minuten erreichbar. Supermarkt, Bäckerei und Apotheke liegen innerhalb von 1.500 m, Schule unter 500 m. Ärzte, Banken und Restaurants sind schnell zu Fuß erreichbar. Der Flughafen ist ca. 7,5 km entfernt.
Zusätzliche Informationen
- Miete: € 1.480 inkl. Betriebskosten, zzgl. Wasser/Kanal (jährl. Abrechnung)
- Energieausweis: Bedarf, HWB 86 kWh/m²a (C), FGE 1,13 kWh/m³a (C)
- Tiefgaragenstellplatz und Kellerabteil inklusive
- Waschküche im Haus nutzbar
Preisübersicht
Gesamtbelastung
1.480 €
/MonatMiete
1.480 €
Betriebskosten
-
Heizkosten
-
Andere Kosten
-
Alle Beträge inkl. MwSt. Details zur Herkunft der Werte findest du in den Preisdetails.
Kaution
3 Bruttomonatsmieten
Tour Request
Eigenschaften
Schlüsselinformationen
Fläche
Zimmer
Gebäude
Einheit
Außenbereiche
Keller / Lagerraum
Etage
Parkmöglichkeiten
Extras
Wohnkomfort
Boden
Ausstattung
Küche
Badezimmer
Energie
Heizung
Heizwärmebedarf (HWB)
Gesamtenergieeffizienz (fGEE)
Grundriss

Über den Anbieter
Michael Penninger, MSc.
Peges Immobilienhttps://pegesimmo.at/
Itzlinger Hauptstraße 57, Salzburg 5020
über Peges Immobilien
12
7 Monaten
Preisübersicht
Gesamtbelastung
1.480 €
/MonatMiete
1.480 €
Betriebskosten
-
Heizkosten
-
Andere Kosten
-
Alle Beträge inkl. MwSt. Details zur Herkunft der Werte findest du in den Preisdetails.
Kaution
3 Bruttomonatsmieten
Preisdetails
Tour Request
Michael Penninger, MSc.
Peges Immobilienhttps://pegesimmo.at/
Itzlinger Hauptstraße 57, Salzburg 5020