


















674 €
/Monat2-Zimmer-Neubauwohnung Miesenbach
54,7 m²
2. Etage
2 Zimmer
1 Bad
Über diese Immobilie
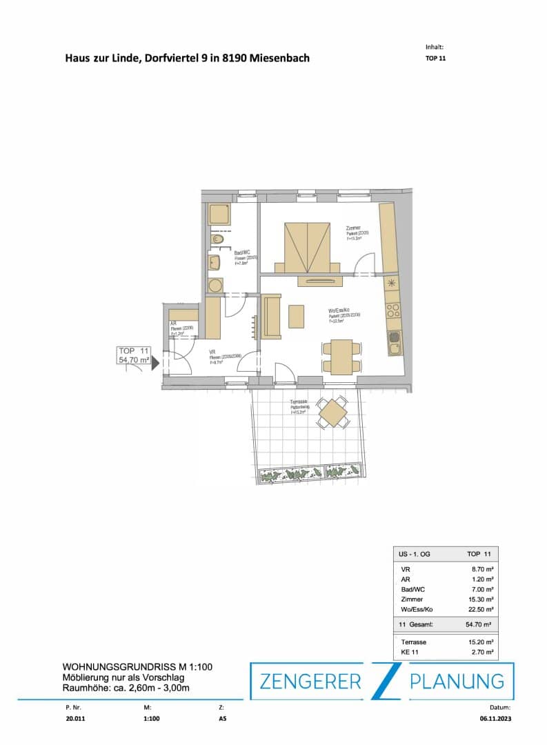
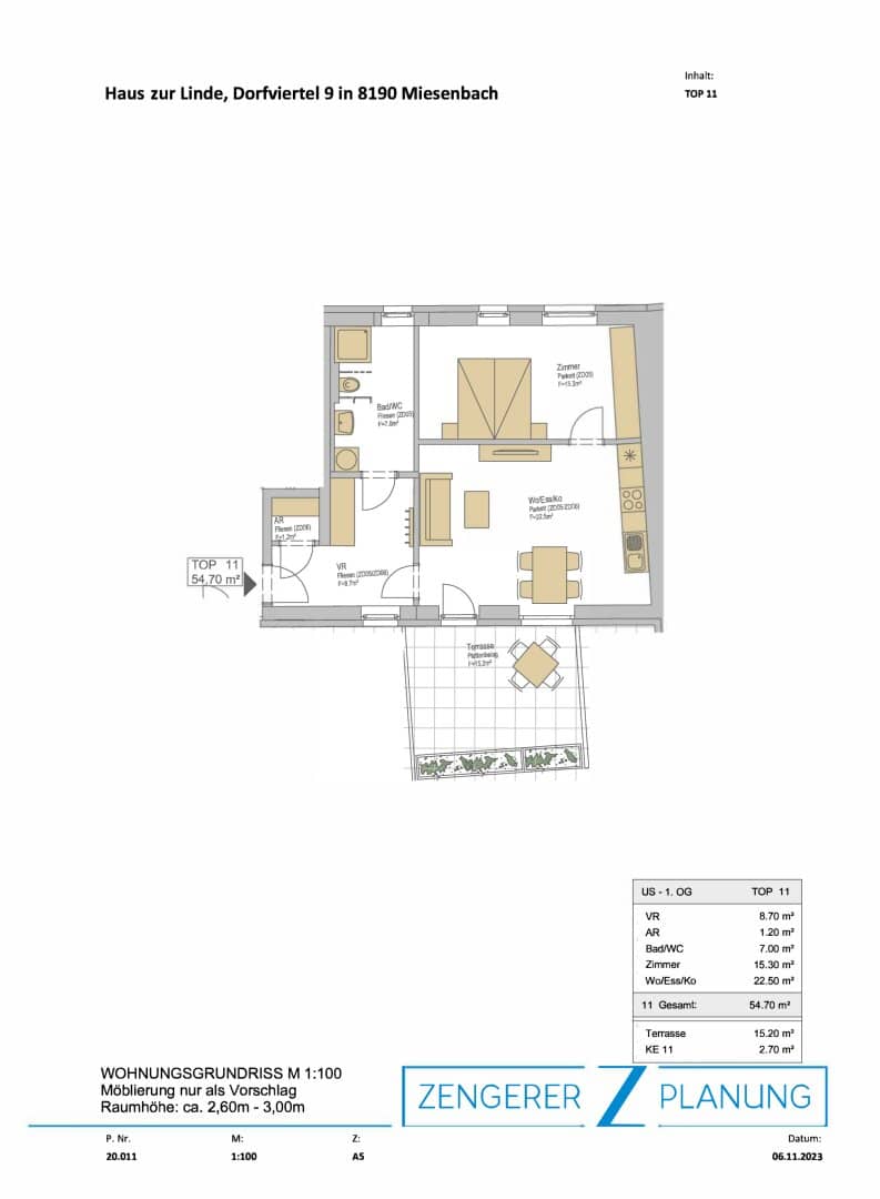
Diese 2-Zimmer-Mietwohnung mit 55 m² Wohnfläche liegt in Miesenbach bei Birkfeld im Mehrgenerationenhaus "Zur Linne". Der Erstbezug bietet barrierefreien Zugang, Fußbodenheizung mit Fernwärme sowie eine südliche Ausrichtung mit Grünblick vom Balkon. Die Wohnung ist modern ausgestattet mit einer offenen Küche inklusive Siemens-Geräten wie Geschirrspüler, Kühlschrank, E-Herd und Backofen. Echter Eichenholzboden sorgt für ein hochwertiges Wohngefühl. Holz-Alufenster und 20 cm starke Fassadendämmung gewährleisten optimale Energieeffizienz. Die helle, großzügige Raumaufteilung umfasst ein Schlafzimmer, Wohnbereich und Bad mit Dusche sowie separatem WC.
- 55 m² Wohnfläche mit 10,23 m² Balkon
- Offene Küche mit Siemens-Geräten (Geschirrspüler, Kühlschrank, Herd, Backofen)
- Fußbodenheizung und Fernwärme
- Eichenholzboden und Fliesen im Bad
- Barrierefrei, seniorengerecht und rollstuhlgerecht
- Aufzug, Abstellraum, Fahrradraum und Stellplatz
- Glasfaserinternet, Kabel-TV, Alarm
- Energieeffizienz: HWB B (34,3 kWh/m²a), FGE B (1,02 kg/m²a)
Lage & Umgebung
Miesenbach bei Birkfeld in der Steiermark bietet pure Erholung inmitten von Wiesen und Wäldern. Bushaltestelle in 1 Minute zu Fuß (18 m), Bäckerei und Kirche ebenfalls 1 Minute entfernt. Raiffeisenbank in 4 Minuten (230 m), Kindergarten und Volksschule in 5 Minuten zu Fuß (350 m). UFC Sportplatz in 3 Minuten, Musikverein in 2 Minuten erreichbar. Eurospar in 8 Autominuten (6,8 km), Einkaufszentrum in 8 Minuten. Ideal für Wanderungen, Mountainbike-Touren und kulturelle Events wie Intermusica.
Zusätzliche Informationen
- Miete inkl. Betriebskosten, Stellplatz, Küche mit Geräten, Kellerabteil, TV-Anschluss und Glasfaser-Internet-Verkabelung
- Heizung und Strom nach Verbrauch
- Energiepass: B (gültig bis 2033-10-31)
- Neubau, Modernisierung 2024
Preisübersicht
Gesamtbelastung
674 €
/MonatMiete
388 €
Betriebskosten
120 €
Heizkosten
-
Andere Kosten
40 €
Alle Beträge inkl. MwSt. Details zur Herkunft der Werte findest du in den Preisdetails.
Kaution
3 Bruttomonatsmieten
Tour Request
Eigenschaften
Schlüsselinformationen
Fläche
Zimmer
Gebäude
Einheit
Außenbereiche
Keller / Lagerraum
Etage
Parkmöglichkeiten
Extras
Wohnkomfort
Boden
Ausstattung
Küche
Badezimmer
Sonstiges
Energie
Heizung
Heizwärmebedarf (HWB)
Gesamtenergieeffizienz (fGEE)
Grundriss

Was ist in der Nähe von Dorfviertel 9, Miesenbach bei Birkfeld 8190
Über den Anbieter
Sales Team
Austria Real GmbHhttps://www.austriareal.com/
Jasomirgottstraße 6, Wien 1010
über Austria Real GmbH
50
11 Monaten
Preisübersicht
Gesamtbelastung
674 €
/MonatMiete
388 €
Betriebskosten
120 €
Heizkosten
-
Andere Kosten
40 €
Alle Beträge inkl. MwSt. Details zur Herkunft der Werte findest du in den Preisdetails.
Kaution
3 Bruttomonatsmieten
Preisdetails
Tour Request
Sales Team
Austria Real GmbHhttps://www.austriareal.com/
Jasomirgottstraße 6, Wien 1010