










1.471 €
/Monat3-Zimmer-Wohnung zentr. Hohenems
73,99 m²
3. Etage
3 Zimmer
1 Bad
Über diese Immobilie
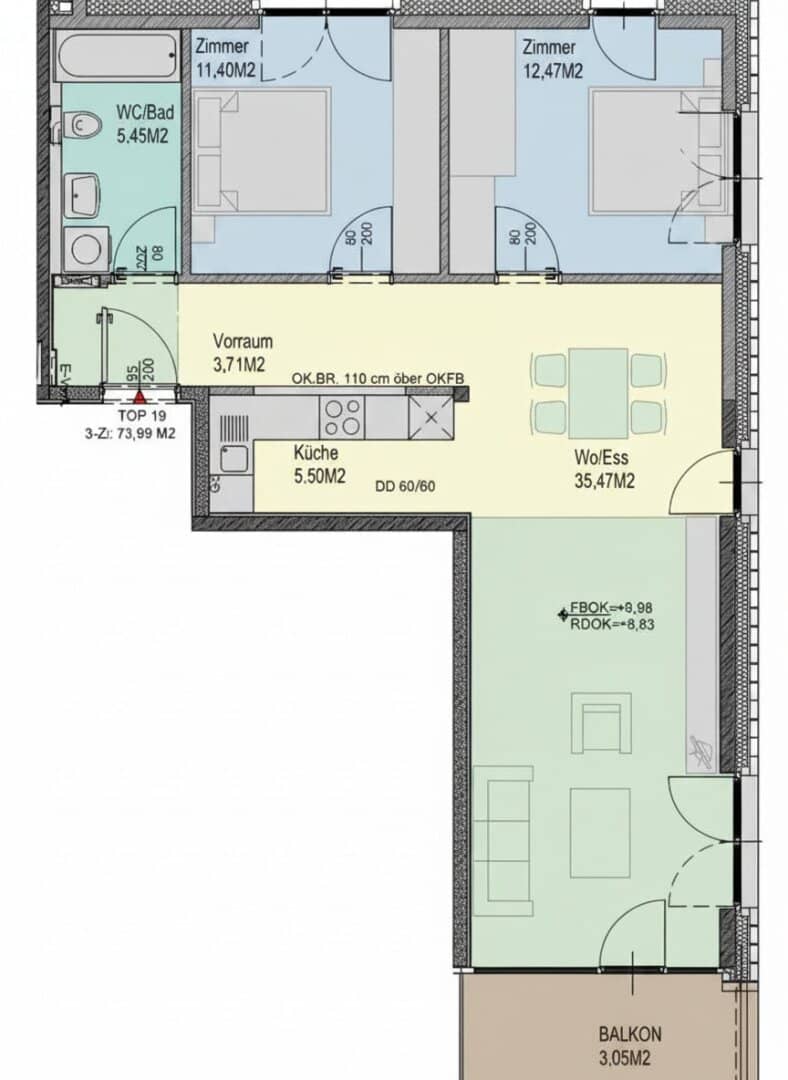
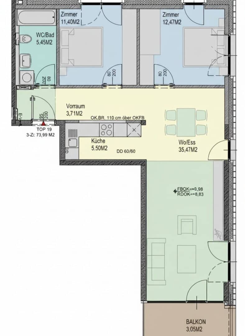
Diese stilvolle 3-Zimmerwohnung mit 73,99 m² Wohnfläche liegt im Herzen von Hohenems in der Schweizer Straße 33. Erbaut im Jahr 2008 im 3. Stock eines Massivbaus mit Aufzug, bietet sie einen offenen Wohn-Essbereich mit Küche, direkten Zugang zum 5,08 m² Balkon sowie zwei Schlafzimmer. Das Badezimmer ist mit Badewanne ausgestattet, es gibt ein separates Gäste-WC. Die Wohnung überzeugt durch Fußbodenheizung mit Fernwärme, Parkett- und Fliesenböden sowie eine energieeffiziente Ausrichtung (Heizwärmebedarf 30 kWh/m²a, Klasse B). Ein Kellerabteil mit 2,77 m² und Tiefgaragenplatz runden das Angebot ab. Die helle, gut geschnittene Raumaufteilung sorgt für harmonisches Wohngefühl.
Highlights
- Offene Küche im Wohnbereich
- Balkon mit 5,08 m²
- Badewanne und separates WC
- Fußbodenheizung mit Fernwärme
- Parkett- und Fliesenböden
- Aufzug vorhanden
- Tiefgaragenplatz
- Kellerabteil
- Energieeffizient: HWB B, FGE A
Lage & Umgebung
Die Wohnung liegt zentral nahe dem Schlossplatz in Hohenems. Supermarkt, Bäckerei und Cafés sind fußläufig in unter 5 Minuten erreichbar. Bus <200 m, Bahnhof <500 m, Autobahn <2 Minuten entfernt. Kindergarten <100 m, Schule <275 m, Arzt <25 m. Die Lage bietet optimalen Alltagskomfort mit guter Anbindung an Vorarlberg.
Zusätzliche Informationen
- Gesamtmiete: 1.471 EUR inkl. Betriebskosten
- Kaution: 4.500 EUR
- Energieausweis: HWB 30 kWh/m²a (B), FGE 0,85 kWh/m²a (A)
- Übernahme nach Vereinbarung
Preisübersicht
Gesamtbelastung
1.471 €
/MonatMiete
1.471 €
Betriebskosten
-
Heizkosten
-
Andere Kosten
-
Alle Beträge inkl. MwSt. Details zur Herkunft der Werte findest du in den Preisdetails.
Kaution
-
Tour Request
Eigenschaften
Schlüsselinformationen
Fläche
Zimmer
Gebäude
Einheit
Außenbereiche
Keller / Lagerraum
Etage
Parkmöglichkeiten
Boden
Ausstattung
Küche
Badezimmer
Energie
Heizung
Heizwärmebedarf (HWB)
Gesamtenergieeffizienz (fGEE)
Grundriss

Was ist in der Nähe von Schweizer Straße 33, Hohenems 6845
Über den Anbieter
Thomas Auer
Mag. Kofler Vermögenstreuhand GmbHhttps://mag-kofler.at/
Am Garnmarkt 3, Götzis 6840
über Mag. Kofler Vermögenstreuhand GmbH
26
2 Monaten
Preisübersicht
Gesamtbelastung
1.471 €
/MonatMiete
1.471 €
Betriebskosten
-
Heizkosten
-
Andere Kosten
-
Alle Beträge inkl. MwSt. Details zur Herkunft der Werte findest du in den Preisdetails.
Kaution
-
Preisdetails
Tour Request
Thomas Auer
Mag. Kofler Vermögenstreuhand GmbHhttps://mag-kofler.at/
Am Garnmarkt 3, Götzis 6840