













999 €
/Monat2-Zimmer-Neubau-Wohnung Wien 1210
65,64 m²
2. Etage/10
2 Zimmer
1 Bad
Über diese Immobilie
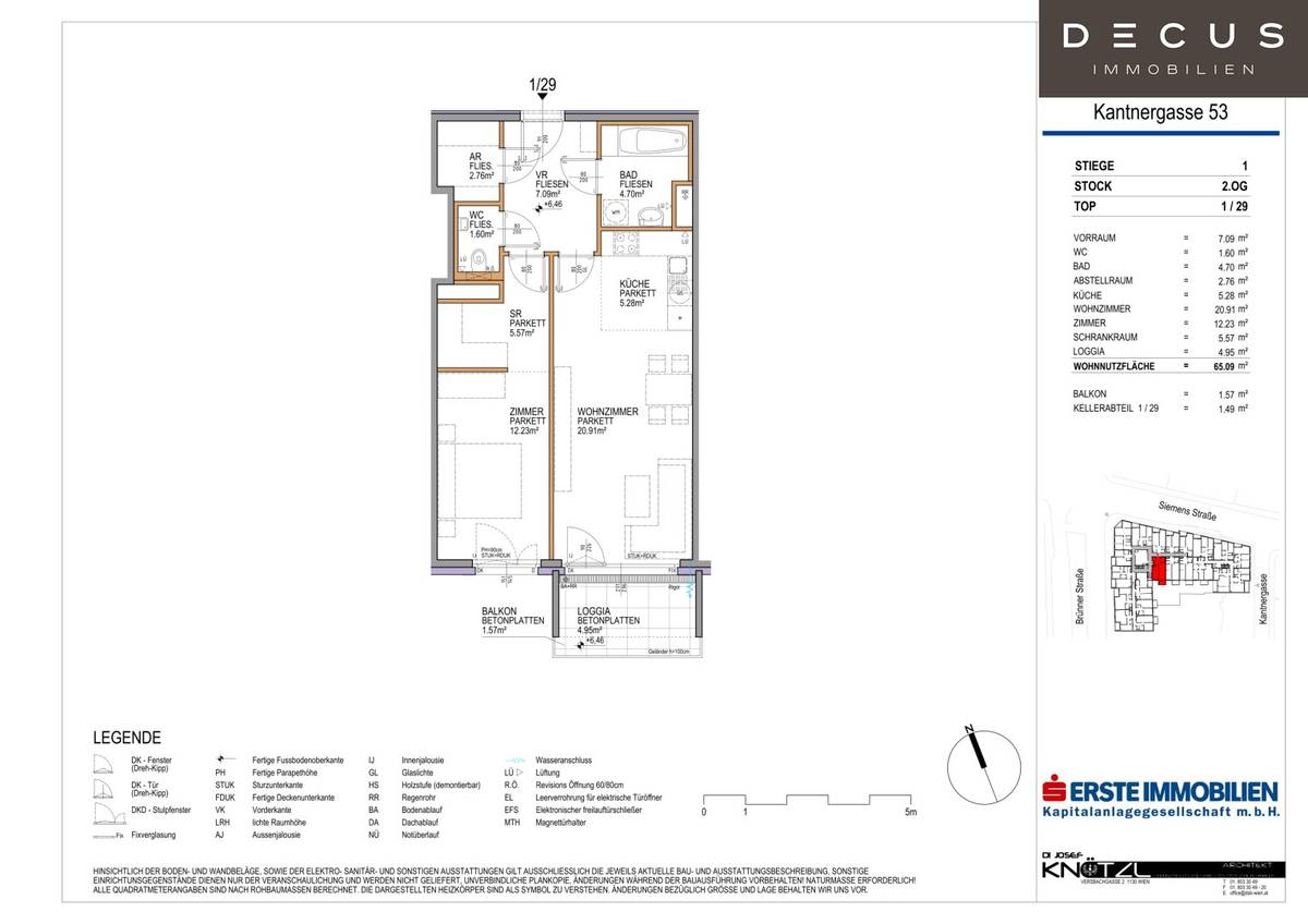
Diese moderne 2-Zimmer-Wohnung im 2. Obergeschoss eines Neubaus aus dem Jahr 2018 in Wien, 1210, bietet 65,64 m² Nutzfläche sowie eine Loggia von 4,95 m² und einen Balkon von 1,57 m². Die Wohnung umfasst einen Vorraum, ein Badezimmer mit Badewanne und Waschmaschinenanschluss, separates WC, Abstellraum, Schrankraum, ein Zimmer und eine Wohnküche. Ausgestattet ist sie mit hochwertiger Einbauküche inklusive Kochfeld, Backrohr, Kühlschrank mit Tiefkühlfach, Dunstabzug und Geschirrspüler. Die Böden bestehen aus Eichen-Parkett, das Bad ist gefliest. Die Zentralheizung läuft mit Gas und Solarunterstützung. Die Fenster sind aus Kunststoff mit optionalen Jalousien.
Highlights
- Hochwertige Einbauküche mit allen Geräten
- Eichen-Parkett in Wohnräumen
- Loggia und Balkon (6,52 m²)
- Begehbarer Kleiderschrank
- Kellerabteil
- Aufzug im Haus
- Zentralheizung mit Solar
- Energieeffizienz: Heizwärmebedarf A, FGE B
Lage & Umgebung
Die Wohnung liegt im 21. Bezirk in guter Verkehrslage. Straßenbahnlinien 30 und 31 sind direkt vor dem Haus, Bus 31A in der Nähe. Die S-Bahn Wien Brünner Straße ist in 15 Gehminuten erreichbar. Supermarkt, Bäckerei, Post, Apotheke und Schule befinden sich unter 250 m entfernt. Einkaufszentrum Trillerpark in 750 m, Fitnesscenter und Bahnhof in unter 1.000 m.
Zusätzliche Informationen
- Befristete Vermietung für 5 Jahre, verfügbar ab Mai
- PKW-Stellplätze in Tiefgarage optional für 138 € brutto
- Inklusive Kellerabteil und Fahrradabstellraum
- Begrüntem Innenhof mit Spielplatz und Gemeinschaftsterrasse
Preisübersicht
Gesamtbelastung
999 €
/MonatMiete
891 €
Betriebskosten
108 €
Heizkosten
-
Andere Kosten
-
Alle Beträge inkl. MwSt. Details zur Herkunft der Werte findest du in den Preisdetails.
Kaution
3 Bruttomonatsmieten
Tour Request
Eigenschaften
Schlüsselinformationen
Fläche
Zimmer
Gebäude
Einheit
Mietdetails
Außenbereiche
Etage
Parkmöglichkeiten
Extras
Boden
Ausstattung
Küche
Schlafzimmer
Badezimmer
Energie
Heizung
Heizwärmebedarf (HWB)
Gesamtenergieeffizienz (fGEE)
Grundriss

3D Tour
Über den Anbieter
Laura Kowalczyk
DECUS Immobilien GmbHhttps://www.decus.at
Kärntner Straße 39, Wien 1010 Wien
über DECUS Immobilien GmbH
1174
7 Monaten
Preisübersicht
Gesamtbelastung
999 €
/MonatMiete
891 €
Betriebskosten
108 €
Heizkosten
-
Andere Kosten
-
Alle Beträge inkl. MwSt. Details zur Herkunft der Werte findest du in den Preisdetails.
Kaution
3 Bruttomonatsmieten
Preisdetails
Tour Request
Laura Kowalczyk
DECUS Immobilien GmbHhttps://www.decus.at
Kärntner Straße 39, Wien 1010 Wien