
















3.144 €
/MonatNeu sanierte Etagenwohnung mit 2 Balkonen & 5 Zimmer Wien Naschmarkt
165,23 m²
1. Etage
5.5 Zimmer
1 Bad
Über diese Immobilie
Diese stilvolle Altbauwohnung liegt in der Mariahilfer Straße nahe dem Naschmarkt in Wien. Die Immobilie wurde 2025 vollständig renoviert, erstreckt sich über ca. 165 m² Wohnfläche und befindet sich in der 1. Etage eines gepflegten Gebäudes. Eine Besonderheit sind zwei Balkone mit Hofblick.
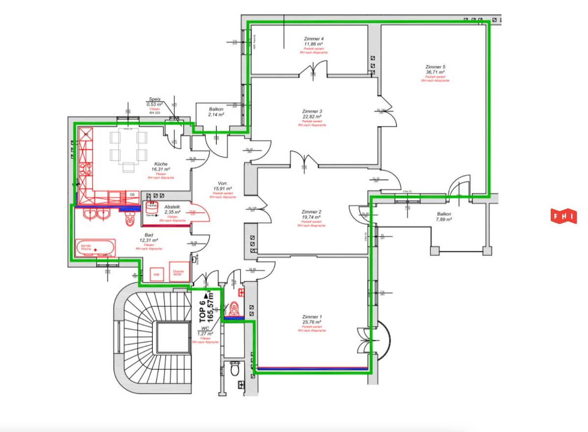
Die großzügige Raumaufteilung umfasst fünf Zimmer, eine zentrale, neu ausgestattete Küche sowie ein Tageslichtbad mit Dusche und Badewanne. Das ca. 165 m² große Zimmer‑ bzw. Wohnareal bietet vielfältige Nutzungsmöglichkeiten, darunter ein 36 m² großes Zimmer mit Blick in den ruhigen Innenhof. Die Küche misst ca. 16 m² und verfügt über eine Einbauküche, ergänzt durch einen Abstellraum. Die Räume überzeugen mit hochwertigem Parkettboden und grauen Steinfliesen; zudem sorgen Klimatisierung und viel Tageslicht für angenehmen Wohnkomfort. Der Altbaucharme der Jahrhundertwende bleibt erhalten, während Lift, barrierefreier Zugang und eine zentrale Gasheizung modernen Ansprüchen gerecht werden. Zwei Balkone zum Innenhof erweitern den Wohnwert; eine hauseigene Tiefgarage ist auf Anfrage verfügbar.
Highlights
- Großzügige Wohnfläche von ca. 165 m²
- 5 Zimmer, ideale Raumaufteilung
- Zwei Balkone mit Hofblick
- Neu ausgestattete Küche (EBK)
- Hochwertige Parkettböden und moderne Steinfliesen
- Klimatisierung
- Lift im Haus und barrierefrei
- Tiefgaragenplatz auf Anfrage
Lage & Umgebung
Die Lage besticht durch unmittelbare Nähe zum Naschmarkt und zur linken Wienzeile. In der Umgebung finden sich zahlreiche Gastronomieangebote, Billa, DM, Apotheke, Banken und Ärzte. Die öffentliche Anbindung ist hervorragend: U4 Kettenbrückengasse in fußläufiger Entfernung, zudem 13A und 58A in der Nähe. Fußläufig erreichen Sie vielfältige Freizeit- und Einkaufsmöglichkeiten sowie das lebendige Stadtleben rund um den Naschmarkt.
Zusätzliche Informationen
- Kaltmiete/Gesamtbelastung: ca. 3.144,33 EUR brutto; Nettomiete ca. 2.643,68 EUR; Betriebskosten ca. 214,80 EUR
- Kaution: 9.500 EUR
- Energieausweis: HWB 133,6 kWh/m²a, Klasse D
- Verfügbarkeit: Ab 01.01.2026 unbefristet
Preisübersicht
Gesamtbelastung
3.144 €
/MonatMiete
2.908 €
Betriebskosten
236 €
Heizkosten
-
Andere Kosten
-
Alle Beträge inkl. MwSt. Details zur Herkunft der Werte findest du in den Preisdetails.
Kaution
9.500 €
Tour Request
Eigenschaften
Schlüsselinformationen
Fläche
Zimmer
Gebäude
Einheit
Außenbereiche
Etage
Parkmöglichkeiten
Extras
Boden
Ausstattung
Küche
Badezimmer
Energie
Heizung
Kühlung
Heizwärmebedarf (HWB)
Gesamtenergieeffizienz (fGEE)
Grundriss

Dokumente
Über den Anbieter
Wolfgang Leeb
FHI Real Estate GmbHhttps://fhi.at
Köstlergasse 6-8/2/20, Wien 1060
über FHI Real Estate GmbH
32
10 Monaten
Preisübersicht
Gesamtbelastung
3.144 €
/MonatMiete
2.908 €
Betriebskosten
236 €
Heizkosten
-
Andere Kosten
-
Alle Beträge inkl. MwSt. Details zur Herkunft der Werte findest du in den Preisdetails.
Kaution
9.500 €
Preisdetails
Tour Request
Wolfgang Leeb
FHI Real Estate GmbHhttps://fhi.at
Köstlergasse 6-8/2/20, Wien 1060