













719.000 €
Großzügige Wohnung mit 6 Zimmern, Eigengarten in Purkersdorf
248,34 m²
6 Zimmer
2 Bäder
Über diese Immobilie
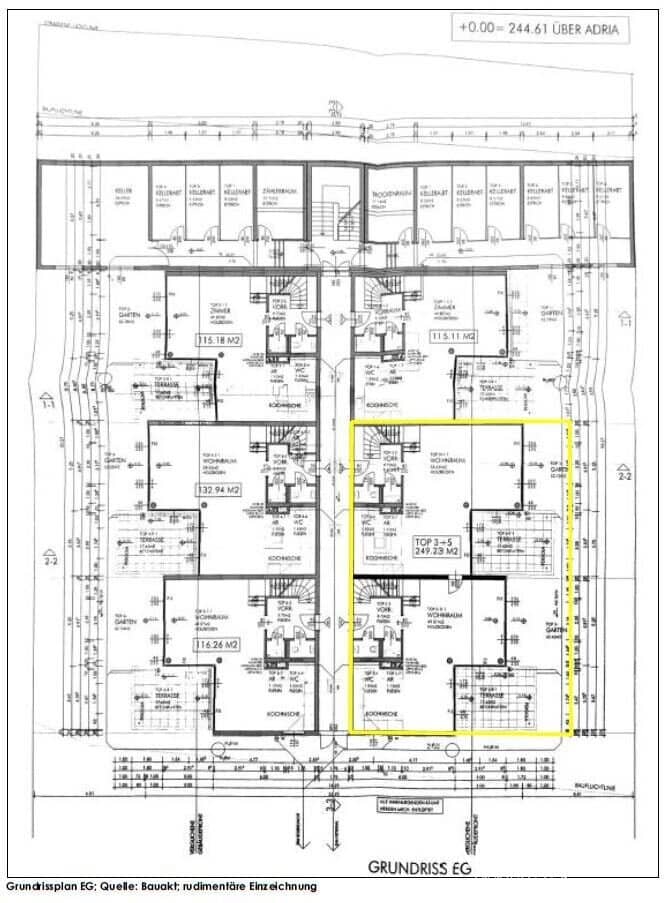
Purkersdorf liegt am westlichen Stadtrand Wiens, direkt am Wienerwald. Die hier vorgestellte Immobilie ist eine großzügige 6-Zimmer-Wohnung mit ca. 248 m² Wohnfläche, Eigengarten und mehreren Terrassen. Baujahr der Anlage ist 2003; die Wohnung befindet sich in gepflegtem Zustand.
Im Erdgeschoss befinden sich zwei Eingänge, zwei Vorzimmer, zwei Gäste-WCs sowie zwei großzügige Wohnbereiche mit Küchenanschlüssen und direktem Zugang zu Terrassen und Garten. Die obere Ebene umfasst vier Schlafzimmer, zwei Badezimmer und zwei Terrassen. Die offene Küche fügt sich harmonisch in den Wohnbereich ein. Die Wohnung verfügt über eine Gasbefeuerung mit Fußbodenheizung, Fliesen- und Parkettböden sowie zwei Kellerabteile. Zur Ausstattung gehören außerdem ein Fahrradraum und zwei überdachte Carport-Stellplätze. Die Trennung der Räume bietet flexible Nutzungsmöglichkeiten; eine Aufteilung in zwei Einheiten ist gegebenenfalls möglich.
- Großzügige Wohnfläche von ca. 248 m² auf zwei Ebenen
- Offene Küche mit direktem Zugang zu Terrassen und Garten
- Eigengarten ca. 111 m² plus 4 Terrassen (gesamt ca. 69,63 m²)
- Sechs Zimmer, zwei Bäder und zwei WCs
- Gasheizung mit Fußbodenheizung; Fliesen- und Parkettböden
- Zwei überdachte Carport-Stellplätze und zwei Kellerabteile
- Fahrradraum und ruhige, familienfreundliche Lage
Lage & Umgebung
Purkersdorf bietet eine ruhige Wohnlage am Wienerwald mit guter Verkehrsanbindung. In unmittelbarer Nähe finden Sie Schulen, Ärzte, Supermärkte und Lokale. Der Bahnhof Purkersdorf ist in ca. 5 Gehminuten erreichbar; Regionalzüge bringen Sie schnell nach Wien, und die Westautobahn erreichen Sie in ca. 5 Autominuten. Das Auhofcenter mit vielfältigem Angebot ist ca. 10 Autominuten entfernt. Zur Freizeit liegen Wanderwege im Wienerwald direkt vor der Tür.
Zusätzliche Informationen
- Kaufpreis: 755.000 EUR
- Außenprovision: 27.180,00 EUR inkl. 20% MwSt.
- Kaufnebenkosten: Grunderwerbssteuer 3,5% und Grundbucheintragung 1,1% des Kaufpreises
- Energieausweis: Bedarf, HWB 60,5 kWh/m²a, Klasse C
Preisübersicht
Kaufpreis
719.000 €
Kaufpreis
719.000 €
Maklerprovision
31.061 €
Tour Request
Eigenschaften
Schlüsselinformationen
Fläche
Zimmer
Gebäude
Einheit
Außenbereiche
Parkmöglichkeiten
Extras
Boden
Ausstattung
Küche
Energie
Heizung
Heizwärmebedarf (HWB)
Grundriss

3D Tour
Über den Anbieter
Michael Schlaffer
AKKADIA Immobilienvermittlung GmbHhttps://akkadia.at/de/
Göttweihergasse 1/1, Wien 1010
über AKKADIA Immobilienvermittlung GmbH
272
1 Jahr
Preisübersicht
Kaufpreis
719.000 €
Kaufpreis
719.000 €
Maklerprovision
31.061 €
Preisdetails
Tour Request
Michael Schlaffer
AKKADIA Immobilienvermittlung GmbHhttps://akkadia.at/de/
Göttweihergasse 1/1, Wien 1010