





















999 €
/MonatCharmante 2-Zimmer-Wohnung mit Südloggia in Wien, Raxstraße 2 9. Etage
54,02 m²
9. Etage / 9.Liftstock
2 Zimmer
1 Bad
Über diese Immobilie
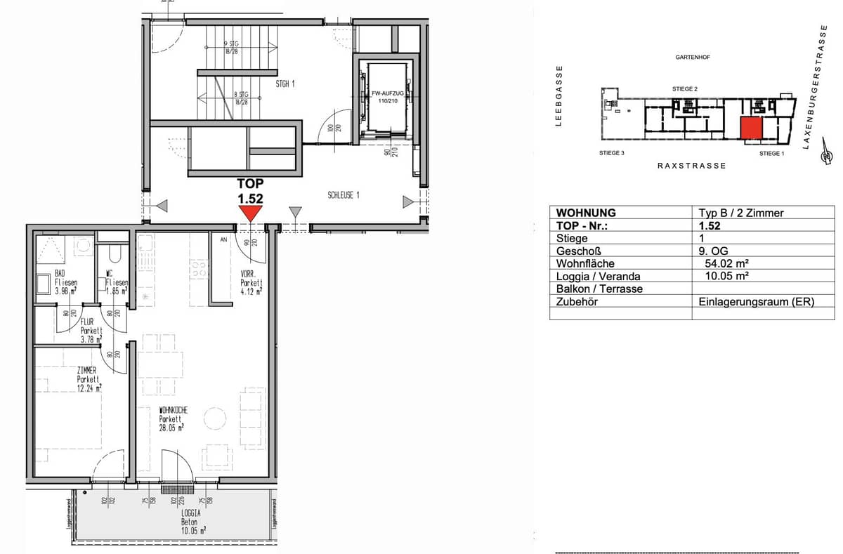
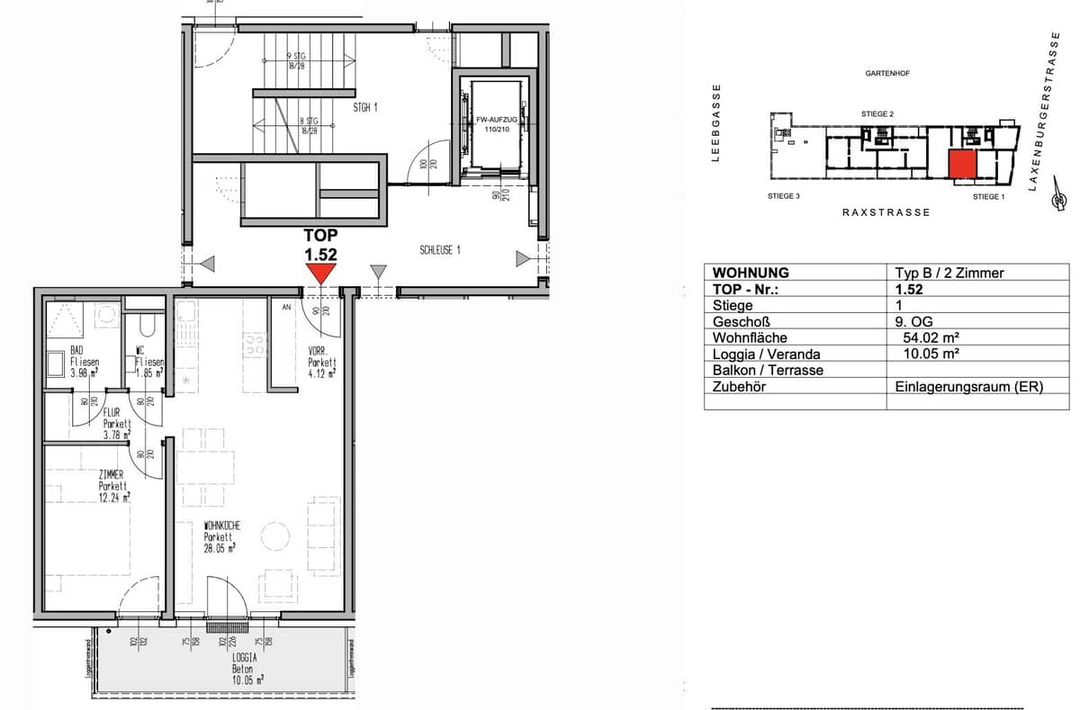
Diese helle 2-Zimmer-Wohnung befindet sich in Wien, Raxstraße 2, 9. Etage eines neuwertigen Neubaus aus 2015. Die Wohnfläche beträgt ca. 54,02 m², ergänzt durch eine großzügige Loggia von 10,05 m². Ideal für Paare oder Singles, die urbanes Wohnen mit Sonnenschein suchen.
Der Grundriss umfasst zwei Zimmer, eine offene Einbauküche (EBK) und ein Badezimmer mit Dusche; ein separates WC erhöht den Komfort. Die Loggia ist südlich ausgerichtet und bietet ca. 10,05 m² zusätzlichen Außenbereich. Die Böden im Wohnbereich sind mit Parkett belegt, das Bad ist gefliest. Die Ausstattung umfasst eine zentrale Fernwärme-Heizung, eine Massivbauweise sowie einen Aufzug. Zu der Wohnung gehört ein Kellerabteil und ein Fahrradabstellraum im Haus. Die Verfügbarkeit ist ab dem 01.01.2026 gegeben.
Highlights
- Offene Einbauküche (EBK) – modern und funktional
- Südlich ausgerichtete Loggia ca. 10,05 m²
- Wohnfläche ca. 54,02 m², zwei Zimmer
- Aufzug vorhanden, 9. Etage
- Parkettboden im Wohnbereich, Fliesen im Bad
- Fernwärme-Zentralheizung, gute Energieeffizienz (HWB 29,4 kWh/m²a, Klasse B)
- Kellerabteil und Fahrradabstellraum im Haus
Lage & Umgebung
Die Lage liegt ruhig im Innenhof, bietet aber eine gute Anbindung an den öffentlichen Verkehr. Buslinien 15A und 66A sowie Straßenbahn 0 befinden sich in unmittelbarer Nähe. Einkaufsmöglichkeiten, Apotheken, Bäckereien und Restaurants liegen fußläufig erreichbar und ermöglichen einen praktischen Alltag. Freizeitmöglichkeiten und Grünflächen befinden sich ebenfalls in der Umgebung, sodass sich Urbanität und Erholung gut kombinieren lassen.
Zusätzliche Informationen
- Kaltmiete: 769,23 EUR; Betriebskosten: 138,95 EUR; Gesamtbelastung netto: 908,18 EUR; Gesamtbelastung brutto: 999,00 EUR
- Kaution: 3 Bruttomonatsmieten
- Übergabe/Verfügbarkeit: ab 01.01.2026
- Energieausweis: HWB 29,4 kWh/m²a, Klasse B
Preisübersicht
Gesamtbelastung
999 €
/MonatMiete
846 €
Betriebskosten
153 €
Heizkosten
-
Andere Kosten
-
Alle Beträge inkl. MwSt. Details zur Herkunft der Werte findest du in den Preisdetails.
Kaution
2.308 €
Tour Request
Eigenschaften
Schlüsselinformationen
Fläche
Zimmer
Gebäude
Einheit
Außenbereiche
Keller / Lagerraum
Etage
Extras
Wohnkomfort
Boden
Ausstattung
Küche
Badezimmer
Energie
Heizung
Heizwärmebedarf (HWB)
Gesamtenergieeffizienz (fGEE)
Grundriss

Was ist in der Nähe von Raxstraße 2, Wien 1100
Über den Anbieter
Nikola Todorovic
Prime Vermittlungs GmbHhttps://www.prime-immobilien.at/
Handelskai 94-96, Wien 1200
über Prime Vermittlungs GmbH
1300
11 Monaten
Preisübersicht
Gesamtbelastung
999 €
/MonatMiete
846 €
Betriebskosten
153 €
Heizkosten
-
Andere Kosten
-
Alle Beträge inkl. MwSt. Details zur Herkunft der Werte findest du in den Preisdetails.
Kaution
2.308 €
Preisdetails
Tour Request
Nikola Todorovic
Prime Vermittlungs GmbHhttps://www.prime-immobilien.at/
Handelskai 94-96, Wien 1200