
















2.237 €
/MonatZentrale Altbauwohnung Innere Stadt
90,89 m²
3. Etage / 3. Stock
2 Zimmer
1 Bad
Über diese Immobilie
Einführung
Diese herrliche Altbauwohnung im Herzen Wiens 1. Bezirk, beim Lugeck, bietet 90,89 m² Wohnfläche auf der 3. Etage. Sie ist nach Süden zum ruhigen Innenhof und Osten zum Nebengebäude ausgerichtet. Die Wohnung ist neuwertig mit hochwertigen Parkettböden, neutral verfliesten Sanitärräumen und einer offenen Wohnküche. Das große Wohnzimmer mit Küche umfasst über 50 m², das Schlafzimmer bietet ca. 17 m². Eine Klimaanlage sorgt für Komfort. Das Gebäude ist in Top-Zustand mit ansprechendem Ambiente vom Eingang bis zur Wohnungstür. Beachten Sie: Kein Lift, 83 Stufen zu bewältigen.
Highlights:
- Offene Wohnküche
- Hochwertiges Parkett
- Badewanne
- Klimaanlage
- Gasheizung mit Etagenheizung
- Ruhige Innenhofausrichtung
- Neuwertiger Zustand
- Kabel- und Sat-TV
Lage & Umgebung
Die Wohnung liegt absolut zentral im 1. Bezirk beim Lugeck. U-Bahn-Stationen Stephansplatz und Schwedenplatz sind nur wenige Minuten entfernt. Innerhalb von 500 m finden Sie Arzt, Apotheke, Supermarkt, Bäckerei, Schule, Kindergarten, Universität, Bus, Straßenbahn und Bahnhof. Klinik, Einkaufszentrum und Höhere Schule sind unter 1.000 m erreichbar. Die gesamte innerstädtische Infrastruktur steht zur Verfügung.
Zusätzliche Informationen
- Energieausweis: Heizwärmebedarf 88 kWh/m²a (Klasse C), FGE 2,2 kg CO₂/m²a (Klasse D), gültig bis 2033
- Separate WC
- Sofortige Vermietung möglich
Preisübersicht
Gesamtbelastung
2.237 €
/MonatMiete
2.000 €
Betriebskosten
150 €
Heizkosten
-
Andere Kosten
87 €
Alle Beträge inkl. MwSt. Details zur Herkunft der Werte findest du in den Preisdetails.
Kaution
6.715 €
Tour Request
Eigenschaften
Schlüsselinformationen
Fläche
Zimmer
Gebäude
Einheit
Mietdetails
Etage
Wohnkomfort
Boden
Ausstattung
Küche
Badezimmer
Energie
Heizung
Kühlung
Heizwärmebedarf (HWB)
Gesamtenergieeffizienz (fGEE)
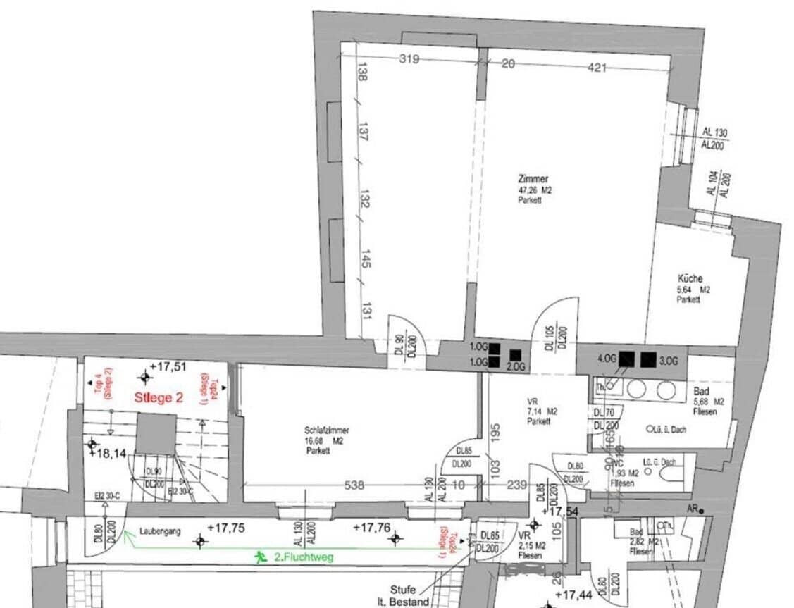
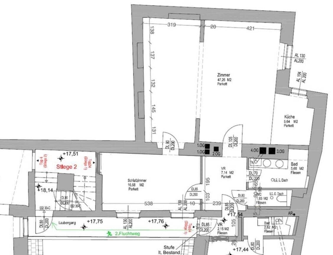
Grundriss

Über den Anbieter
Stefan Luschnig
engelreal immobilien gmbhhttps://www.engelreal.at
Bierhäuselberggasse 75, Wien 1140
über engelreal immobilien gmbh
29
1 Monat
Preisübersicht
Gesamtbelastung
2.237 €
/MonatMiete
2.000 €
Betriebskosten
150 €
Heizkosten
-
Andere Kosten
87 €
Alle Beträge inkl. MwSt. Details zur Herkunft der Werte findest du in den Preisdetails.
Kaution
6.715 €
Preisdetails
Tour Request
Stefan Luschnig
engelreal immobilien gmbhhttps://www.engelreal.at
Bierhäuselberggasse 75, Wien 1140