
2.002 €/m²
Investment Property Kutschkermarkt 350m²
349,63 m²
About this Property
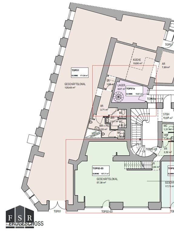
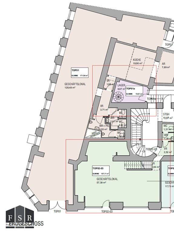
This investment property at Kutschkermarkt in Vienna 1180 is a permanently rented commercial unit for gastronomy use. Built in 1895 as an old building, it offers approx. 350 m² of usable space, with 172 m² on the ground floor and 178 m² in the basement including ice cellar, heating room and storage. The unit is operated by an established restaurant and generates a net rent of approx. € 36,768 p.a., yielding about 5.25 %. The rent is indexed and secured. The attic will be expanded in autumn 2026, including renovation of common areas, facade and installation of a passenger elevator. It is condominium ownership, with establishment planned soon.
- Permanent lease with stable 5.25 % yield
- Prime location at Kutschkermarkt
- 350 m² usable space (ground floor + basement)
- Prominent corner unit with established restaurant tenant
- Planned renovation and expansion in 2026
- Passenger elevator and facade renovation
- Indexed net rent € 36,768 p.a.
- Condominium ownership
Location & Surroundings
The location at Kutschkermarkt in Vienna 1180 is excellent. Within under 500 m you reach doctor, pharmacy, clinic, hospital, school, kindergarten, university, supermarket, bakery, bank, post and bus. U-Bahn, tram and train station are also under 500 m away. A shopping center is under 1,500 m, police under 1,000 m and highway access under 2,000 m. All distances are as the crow flies. The infrastructure is comprehensive and offers best connectivity.
Additional Information
- Net rent: € 36,768 p.a., indexed
- Yield: approx. 5.25 %
- Energy certificate: Heating demand 147.6 kWh/m²a (class F), fGEE 3.21 (class E), valid until 2033
- Handover: by agreement
Price Overview
Purchase Price
2.002 €/m²
Purchase Price
700.000 €
Broker Commission
3% des Kaufpreises zzgl. 20% USt.
Tour Request
Property Details
Key Information
Area
Building
Unit
Energy
Heating Demand (HWB)
Overall Energy Efficiency (fGEE)
Property Floorplan

About the Provider
Sales Team
FSR Immobilienvermarktungs- und –beteiligungs GmbHhttps://www.fsr-real.at/
Fichtegasse 5 Top 6a, Wien 1010
about FSR Immobilienvermarktungs- und –beteiligungs GmbH
33
10 months
Price Overview
Purchase Price
2.002 €/m²
Purchase Price
700.000 €
Broker Commission
3% des Kaufpreises zzgl. 20% USt.
Price Breakdown
Tour Request
Sales Team
FSR Immobilienvermarktungs- und –beteiligungs GmbHhttps://www.fsr-real.at/
Fichtegasse 5 Top 6a, Wien 1010