








450.000 €
Bungalow in Velden am Wörthersee – barrierearm, Terrasse 12,1 m², 48,5 m²
48,5 m²
3 Zimmer
1 Bad
2 Schlafzimmer
Über diese Immobilie
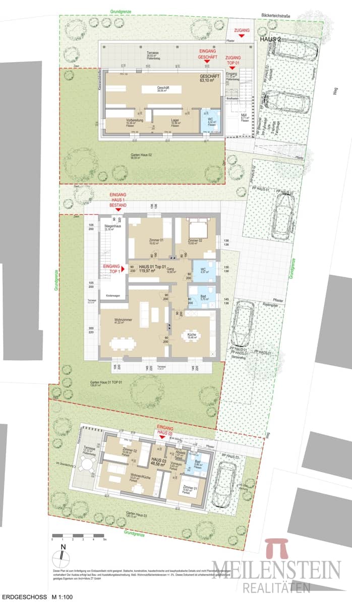
Dieses projektierte Bungalow‑Wohnkonzept befindet sich in Velden am Wörthersee in einer ruhigen Innenhoflage. Geplant ist eine barrierearme Bauweise auf einer Ebene mit ca. 48,5 m² Wohnfläche, Baujahr 2026. Die Immobilie bietet 3 Zimmer, eine Terrasse und einen privaten Gartenanteil.
Der eingeschossige Bungalow ist barrierearm gestaltet und ideal für Singles, Paare und Best Ager. Auf ca. 48,5 m² verteilen sich ein offener Wohn‑ und Küchenbereich, zwei Schlafräume und ein modernes Bad. Große Glasflächen sorgen für viel Tageslicht und einen fließenden Übergang zum Außenbereich. Die südwestlich ausgerichtete Terrasse mit ca. 12,1 m² erweitert den Wohnraum nach draußen; der private Garten bietet zusätzliche Rückzugsmöglichkeiten. Der Grundriss ist kompakt und durchdacht, sodass sich die Räume flexibel nutzen lassen. Der Bungalow gehört zu einem harmonischen Gesamtprojekt mit Bestandsvilla und drei Neubauten.
Highlights
- Barrierearm und seniorengerecht
- Terrasse 12,1 m² mit Südwest-Ausrichtung
- Privater Gartenanteil zur Mitbenutzung
- Offener Wohn‑ und Küchenbereich
- Fußbodenheizung und Fernwärme
- Kabel-/Sat-TV-Anschluss
- 1 Stellplatz
Lage & Umgebung
Velden am Wörthersee besticht durch See-Nähe, Lebensqualität und eine hervorragende Infrastruktur. Die Lage in der Bäckerteichstraße ist ruhig und dennoch zentrumsnah: ca. 5–10 Gehminuten bis zur Uferpromenade am Wörthersee, ca. 8 Gehminuten zum Ortskern mit Cafés, Restaurants und Boutiquen, sowie ca. 5 Gehminuten zum Schulzentrum Velden. Kindergarten und Grundschule befinden sich in unmittelbarer Nähe. Die Anbindung ist hervorragend: Autobahnauffahrt Velden West ca. 4 Minuten, Bahnhof Velden ca. 1,5 Minuten, Flughafen Klagenfurt ca. 22 Minuten. Freizeit- und Nahversorgungsmöglichkeiten liegen in unmittelbarer Nähe.
Zusätzliche Informationen
- Kaufpreis: 450.000 EUR
- Provision: 3 % vom Kaufpreis zzgl. 20% MwSt. (Nebenkosten Grunderwerbsteuer 3,5%, Grundbucheintragungsgebühr 1,1%)
- Verfügbarkeit: Ab Vereinbarung
- Stellplatz: 1 Stellplatz inklusive
Preisübersicht
Kaufpreis
450.000 €
Kaufpreis
450.000 €
Maklerprovision
3 % vom Kaufpreis zzgl. 20 % MwSt.
Tour Request
Eigenschaften
Schlüsselinformationen
Fläche
Zimmer
Gebäude
Einheit
Außenbereiche
Parkmöglichkeiten
Wohnkomfort
Boden
Ausstattung
Küche
Badezimmer
Sonstiges
Energie
Heizung
Grundriss

Über den Anbieter
Daniel Schwarzmann
Meilenstein Realitäten GmbHhttps://www.meilenstein.co.at/#/
Maria-Theresien-Straße 34, Innsbruck 6020
über Meilenstein Realitäten GmbH
136
4 Monaten
Preisübersicht
Kaufpreis
450.000 €
Kaufpreis
450.000 €
Maklerprovision
3 % vom Kaufpreis zzgl. 20 % MwSt.
Tour Request
Daniel Schwarzmann
Meilenstein Realitäten GmbHhttps://www.meilenstein.co.at/#/
Maria-Theresien-Straße 34, Innsbruck 6020