













740.000 €
Charmante Wienerwald-Villa in erstklassiger Siedlungslage in Pressbaum
156 m²
5 Zimmer
1 Bad
Über diese Immobilie
Die charmante Wienerwald-Villa befindet sich im Zentrum von Pressbaum. Das Gebäude wurde 1904 erbaut und 2023 modernisiert. Auf rund 156 m² Wohnfläche verteilen sich 5 Zimmer auf drei Ebenen und ein vielseitig nutzbarer Innenhof.
Der robuste Massivbau verfügt über Vollwärmeschutz und eine Gas-Zentralheizung, die 2023 generalüberholt wurde. Im Erdgeschoss befindet sich aktuell ein Praxisbereich mit zentralem Vorraum, einem ostseitigen Zimmer, Abstellraum und separatem WC; von hier aus lässt sich der Wohn- und Arbeitsbereich gut abgrenzen. Über eine Holztreppe gelangt man ins Obergeschoss, wo sich ein großzügiger Windfang, zwei Zimmer (ost- und südostausgerichtet), eine Küche mit Essbereich sowie ein weiteres WC und ein Bad befinden. Vom Erdgeschoss aus führt eine weitere Treppe in das Dachgeschoss, das einen lichtdurchfluteten Wohnbereich von ca. 45 m² mit Holzdecke, Giebelfenstern sowie Blick ins Grüne bietet. Ein weiteres Zimmer und ein WC ergänzen hier die Raumnutzung. Der Innenhof wird von einem überdachten Laubengang umgeben und von einem über 32 m² großen Nebengebäude ergänzt; ideal als Platz für Grillen, Hobby oder Gäste. Hochwertige Holz- bzw. Dielenböden, Massivbauweise und eine ruhige Südausrichtung prägen das Wohnambiente. Eine Klimaanlage im Dachgeschoss sorgt zusätzlich für angenehme Temperaturen im Sommer.
Lage & Umgebung
Infrastruktur und Verkehr: Nahversorgung und Schulen befinden sich in kurzer Entfernung. Die wichtigsten Einrichtungen wie Sacré Coeur Pressbaum, Neue Mittelschule, Volksschule und der Landeskindergarten erreichen Sie bequem zu Fuß (<500 m). Die Westbahn-Haltestelle Pressbaum liegt nur wenige Gehminuten entfernt; der Schulbus verbindet das Schulzentrum Norbertinum in Tullnerbach. Das Wienerwaldsee-Naherholungsgebiet mit Panorama-Rundweg ist ca. 3 km entfernt und auch mit dem Fahrrad gut erreichbar. Die Autobahn A1 ist ca. 15 Autominuten erreichbar; St. Pölten erreicht man in ca. 30 Minuten. Die Wiener Stadtgrenze ist in ca. 15 Autominuten erreichbar.
Zusätzliche Informationen
- Kaufpreis: 780.000 EUR
- Maklercourtage: 3% des Kaufpreises zzgl. 20% USt.
- Nebenkosten: Grunderwerbsteuer 3,5% und Grundbucheintragung 1,1%
- Energieausweis: HWB 93 kWh/m²a, Klasse C, gültig bis 2032
Preisübersicht
Kaufpreis
740.000 €
Kaufpreis
740.000 €
Maklerprovision
28.080 €
Tour Request
Eigenschaften
Schlüsselinformationen
Fläche
Zimmer
Gebäude
Einheit
Außenbereiche
Keller / Lagerraum
Parkmöglichkeiten
Extras
Boden
Ausstattung
Küche
Badezimmer
Sonstiges
Energie
Heizung
Kühlung
Heizwärmebedarf (HWB)
Gesamtenergieeffizienz (fGEE)
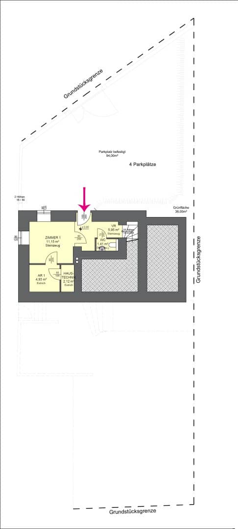
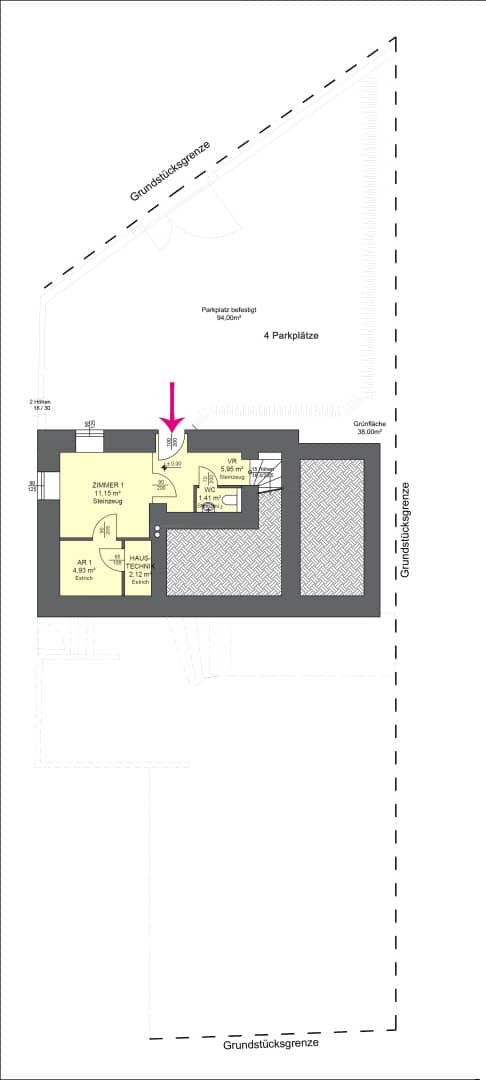
Grundriss

Über den Anbieter
Irene Dräxler
Rudi Dräxler Immobilientreuhand GmbHhttps://www.haus-haus.at/Home/Index
Albert Schweitzer Gasse 6, Wien 1140
über Rudi Dräxler Immobilientreuhand GmbH
164
1 Jahr
Preisübersicht
Kaufpreis
740.000 €
Kaufpreis
740.000 €
Maklerprovision
28.080 €
Preisdetails
Tour Request
Irene Dräxler
Rudi Dräxler Immobilientreuhand GmbHhttps://www.haus-haus.at/Home/Index
Albert Schweitzer Gasse 6, Wien 1140