









13 €/m²
/MonatNeu sanierte Büro- / Praxisräume sehr zentral gelegen
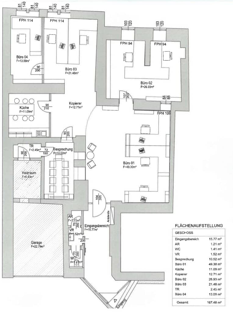
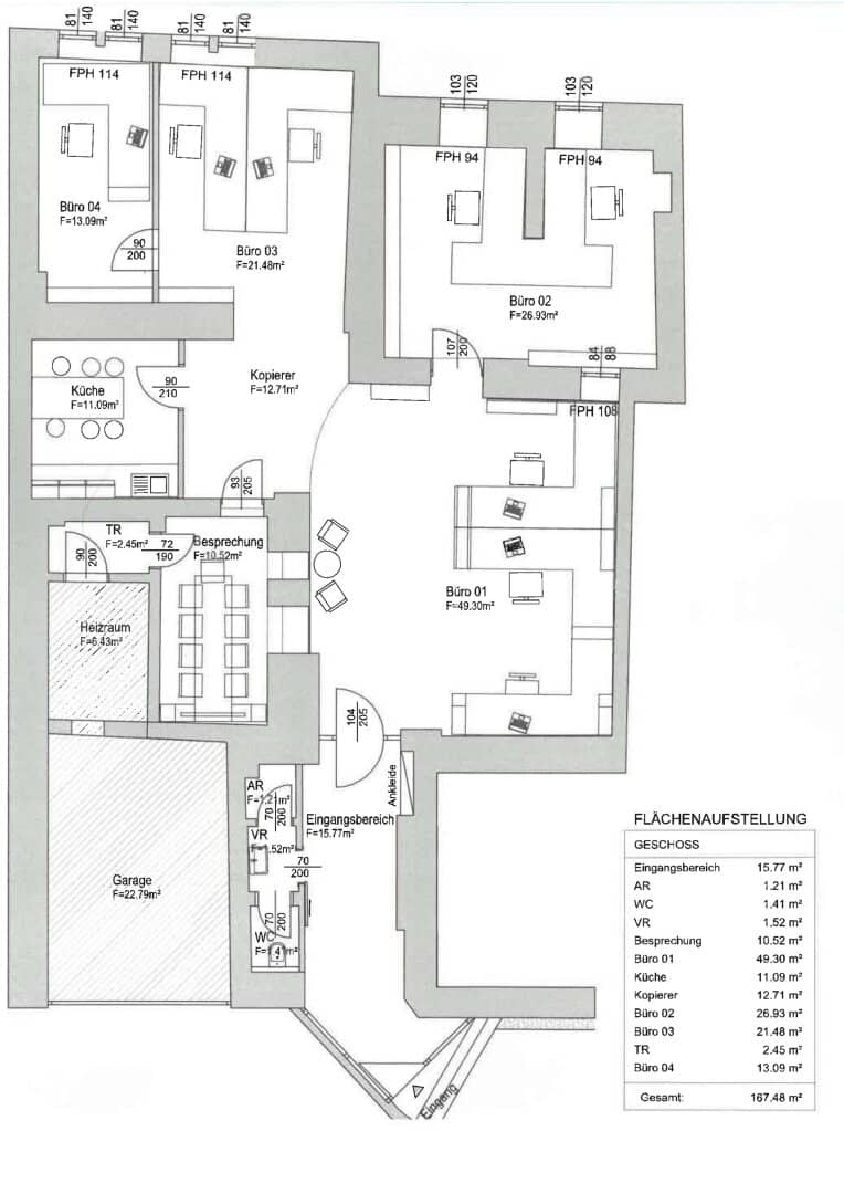
167,48 m²
EG/1
Über diese Immobilie
Zur Miete steht eine 2021 neu sanierte Büro-/Praxisfläche im Zentrum von Weiz.
Das Mietobjekt befindet sich im Erdgeschoß und es führen zwei Stufen beim Eingang nach unten.
Auf einer Fläche von 167m² finden Sie folgende Räumlichkeiten:
- Eingangsbereich mit WC und Abstellraum
- der zentrale große Büroraum mit aktuell drei Arbeitsplätzen
- 1 Besprechungsraum mit Präsentations-TV
- Serverraum
- Kopierplatz und Küche
- Büro 2 mit zwei Arbeitsplätzen (mit Tür)
- Büro 3 mit zwei Arbeitsplätzen (ohne Tür), davon abgehend:
- Büro 4 mit einem Arbeitsplatz (mit Tür)
Die aktuelle Befristung ist mit fast 4 Jahren bis Ende April 2029 vorgegeben. Für gewünschte längere Befristungen werden Gespräche mit dem Vermieter bzw. Eigentümer (sind nicht ident) empfohlen.
Aktuell wird vom Vermieter eine Möbel- bzw. Ausstattungsablöse gewünscht, die Ausstattung ist auf den Fotos ersichtlich. Die Ausstattung wurde sehr modern und auch teilweise künstlerisch bzw. geschmackvoll ausgewählt. Die Ablöse wird bei tatsächlichem Interesse am Objekt genauer besprochen. Eventuell wäre nach Absprache auch eine Möbelmiete möglich.
Die Kaution beträgt 6.250 Euro.
Das Objekt wird mit Fernwärme beheizt und verfügt über eine Klimaanlage, Markisen beim Glasdach über dem großen Büro, Alarmanlage und einen elektrischen Türöffner.
Eine gewünschte Barrierefreiheit (momentan gibt es zwei Stufen nach unten in das Objekt vor dem Eingang) müsste extra gesprochen werden.
Parkplätze stehen keine eigenen zur Verfügung, können aber nach Verfügbarkeit bei der Stadt Weiz / Stadtpolizei Weiz jährlich angemietet werden.
Der Vermittler ist als Doppelmakler tätig.
Preisübersicht
Gesamtbelastung
13 €/m²
/MonatMiete
1.793 €
Betriebskosten
387 €
Heizkosten
-
Andere Kosten
-
Alle Beträge inkl. MwSt. Details zur Herkunft der Werte findest du in den Preisdetails.
Kaution
41 €
Tour Request
Eigenschaften
Schlüsselinformationen
Fläche
Zimmer
Einheit
Mietdetails
Etage
Ausstattung
Sonstiges
Energie
Kühlung
Heizwärmebedarf (HWB)
Gesamtenergieeffizienz (fGEE)
Grundriss

Über den Anbieter
Martin Kreim
NEUHOLD IMMOBILIEN GmbHhttps://www.neuimmo.com/
Marburger Straße 104, Weiz 8160
über NEUHOLD IMMOBILIEN GmbH
112
11 Monaten
Preisübersicht
Gesamtbelastung
13 €/m²
/MonatMiete
1.793 €
Betriebskosten
387 €
Heizkosten
-
Andere Kosten
-
Alle Beträge inkl. MwSt. Details zur Herkunft der Werte findest du in den Preisdetails.
Kaution
41 €
Preisdetails
Tour Request
Martin Kreim
NEUHOLD IMMOBILIEN GmbHhttps://www.neuimmo.com/
Marburger Straße 104, Weiz 8160