












23 €/m²
/MonatTop Bürofläche im QBC 1 zur Miete in Wien, Belvedere - 379 m²
379 m²
Über diese Immobilie
Diese Bürofläche befindet sich im QBC Belvedere in Wien und bietet ca. 379 m² Nutzfläche auf modernem Niveau (Baujahr 2020). Die Lage überzeugt durch hervorragende Infrastruktur, unmittelbare Bahnanbindung und hochwertige Ausstattung.
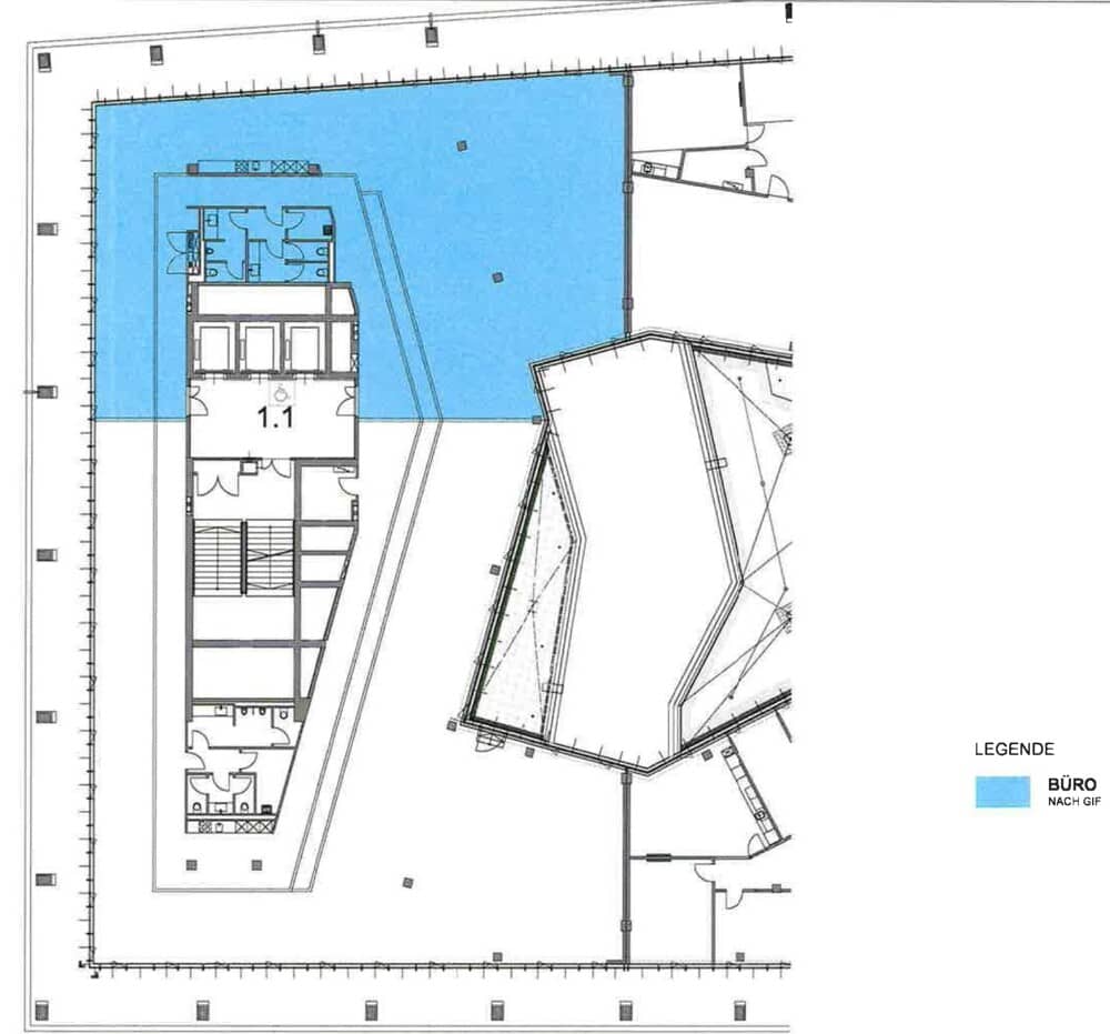
Die ca. 379 m² große Fläche liegt im 1. Obergeschoss des Gebäudes und verfügt über eine hochwertige Ausstattung. Zu den Ausstattungsmerkmalen gehören Doppelboden, Kühlung über Kühlbalken, Fernwärme-Heizung, öffnbare Fenster mit außenliegenden Jalousien, eine Teeküche sowie ein Aufzug und ein Serverraum, der zusätzlich gekühlt ist. Der Standort bietet flexible Nutzungsmöglichkeiten in einem modernen Bürokomplex; die Räume sind hell und gut belichtet. Die Bauweise entspricht den Standards eines nichtwohnenden Gebäudes, und die Fläche ist auf dem aktuellen Stand. Eine hauseigene Tiefgarage sowie Fahrradabstellplätze erhöhen die Erreichbarkeit und Flexibilität.
Highlights
- Großzügige Fläche: ca. 379 m² Nutzfläche
- Hochwertige Ausstattung: Doppelboden, Teeküche, LED-Leuchtpaneele
- Kühlung & Heizung: Kühlung über Kühlbalken, Fernwärme-Heizung
- Fenster & Sicherheit: Öffnbare Fenster, außenliegende Jalousien, Zutritt per Kartensystem
- Infrastruktur: Aufzug, hauseigene Tiefgarage, Fahrradabstellraum
- Energieeffizienz: HWB 29,5 kWh/m²a, Klasse B
Lage & Umgebung
Die Lage im QBC Belvedere bietet erstklassige Infrastruktur und Verkehrsanbindung. Neben dem Belvederequartier finden sich Restaurants, Bars, Hotels, Konferenzbereiche und Geschäfte in unmittelbarer Nähe. Die Anbindung an öffentliche Verkehrsmittel ist hervorragend, mit direkter Erreichbarkeit von regionalen und internationalen Zugverbindungen am Hauptbahnhof. Erholungs- und Freizeitmöglichkeiten bieten Parkanlagen rund um das Areal, darunter der Belvedere und der Schweizer Garten.
Zusätzliche Informationen
- Nettomiete: 23 €/m²/Monat
- Verfügbarkeit: ab 01.09.2026
- Energieausweis: HWB 29,5 kWh/m²a, Klasse B (Energieausweis liegt gemäß Vorlagegesetz noch nicht vorgelegt)
- Kaution: auf Anfrage
Preisübersicht
Gesamtbelastung
23 €/m²
/MonatMiete
25 €
Betriebskosten
-
Heizkosten
-
Andere Kosten
-
Alle Beträge inkl. MwSt. Details zur Herkunft der Werte findest du in den Preisdetails.
Kaution
-
Tour Request
Eigenschaften
Schlüsselinformationen
Fläche
Gebäude
Einheit
Etage
Parkmöglichkeiten
Extras
Boden
Ausstattung
Küche
Energie
Heizung
Kühlung
Heizwärmebedarf (HWB)
Gesamtenergieeffizienz (fGEE)
Grundriss

Über den Anbieter
Sales Team
CBRE GmbHhttps://www.cbre.at/
Am Belvedere 10, Wien 1100
über CBRE GmbH
163
2 Monaten
Preisübersicht
Gesamtbelastung
23 €/m²
/MonatMiete
25 €
Betriebskosten
-
Heizkosten
-
Andere Kosten
-
Alle Beträge inkl. MwSt. Details zur Herkunft der Werte findest du in den Preisdetails.
Kaution
-
Preisdetails
Tour Request
Sales Team
CBRE GmbHhttps://www.cbre.at/
Am Belvedere 10, Wien 1100