








18 €/m²
/MonatHochwertiges Büro ca. 273 m² in 1080 Wien, 1.OG, Lift, zentrale Lage
272,62 m²
1
Über diese Immobilie
Dieses hochwertig sanierte Büro befindet sich in zentraler Lage des 8. Wiener Bezirks, Josefstadt. Die ca. 273 m² Nutzfläche verteilen sich auf das 1. Obergeschoss eines gepflegten Gebäudes mit Lift.
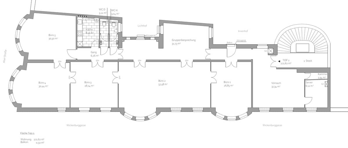
Die Fläche beträgt ca. 273 m² und liegt im 1. Obergeschoss eines gepflegten Gebäudes mit Lift. Die Raumaufteilung umfasst einen großzügigen Vorraum, 4 getrennt begehbare Büroräume, einen Serverraum, eine Teeküche und getrennte WC-Gruppen. Die Räumlichkeiten wurden komplett saniert und präsentieren sich in sehr gutem Zustand. Zur Ausstattung gehört Klimatisierung.
Lage & Umgebung
Die Lage im 1080 Wien ist zentral und attraktiv, mit einer ausgezeichneten Infrastruktur.
In der Nähe befinden sich U2 – Station Rathaus, Straßenbahnen 5, 12, 43 und 44 sowie der Bus 13A.
Die Innenstadt ist fußläufig in rund 20 Minuten erreichbar oder mit öffentlichen Verkehrsmitteln in etwa 10 Minuten.
Zahlreiche Einkaufsmöglichkeiten, Restaurants und Büros prägen das Umfeld.
Zusätzliche Informationen
- Kaltmiete: 6.018,64 EUR/Monat; Nebenkosten: 567,04 EUR/Monat; Gesamtbelastung: 6.699,09 EUR/Monat
- Kaution: 3-6 BMM (bonitätsabhängig)
- Energieausweis: HWB 151 kWh/m²a, HWB-Klasse E, Baujahr 2014
- Übergabe/Verfügbarkeit: Nach Vereinbarung
Preisübersicht
Gesamtbelastung
18 €/m²
/MonatMiete
5.518 €
Betriebskosten
690 €
Heizkosten
-
Andere Kosten
-
Alle Beträge inkl. MwSt. Details zur Herkunft der Werte findest du in den Preisdetails.
Kaution
3-6 BMM (bonitätsabhängig)
Tour Request
Eigenschaften
Schlüsselinformationen
Fläche
Einheit
Mietdetails
Etage
Ausstattung
Küche
Energie
Kühlung
Heizwärmebedarf (HWB)
Gesamtenergieeffizienz (fGEE)
Grundriss

Über den Anbieter
Magdalena Pesic, BSc
OTTO Immobilien GmbHhttps://www.otto.at/
Riemergasse 8, Wien 1010
über OTTO Immobilien GmbH
466
11 Monaten
Preisübersicht
Gesamtbelastung
18 €/m²
/MonatMiete
5.518 €
Betriebskosten
690 €
Heizkosten
-
Andere Kosten
-
Alle Beträge inkl. MwSt. Details zur Herkunft der Werte findest du in den Preisdetails.
Kaution
3-6 BMM (bonitätsabhängig)
Preisdetails
Tour Request
Magdalena Pesic, BSc
OTTO Immobilien GmbHhttps://www.otto.at/
Riemergasse 8, Wien 1010