



16 €/m²
/MonatBürofläche in Wien, Walcherstraße 11, 4. OG, Glastrennwände, ÖGNI
464 m²
Über diese Immobilie
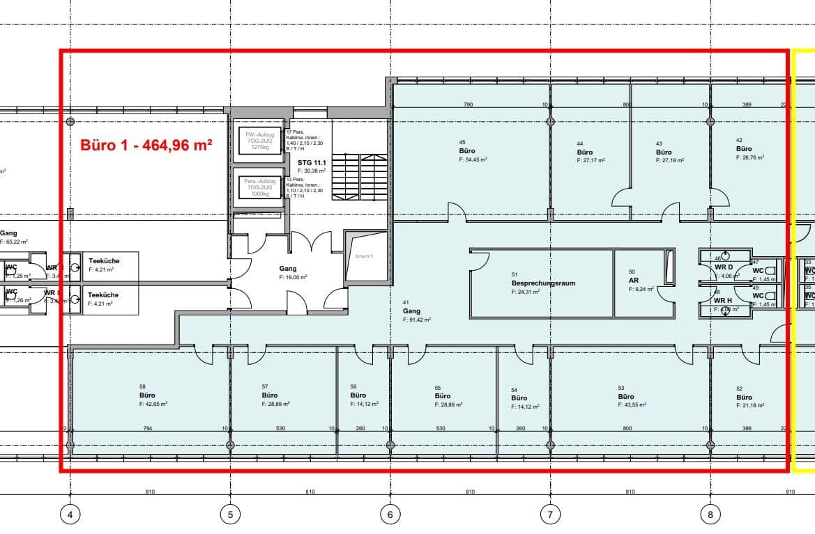
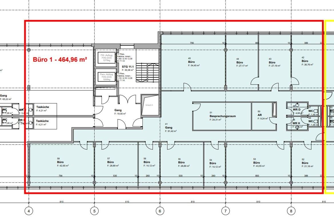
Die zur Vermietung stehenden Büroflächen befinden sich zentral in 1020 Wien, Walcherstraße 11, im Nordbahnviertel. Die Flächen haben ca. 464 m² Nutzfläche und liegen im 4. Obergeschoss des Gebäudes. Das Objekt wurde 2013 fertiggestellt und ist ÖGNI-zertifiziert.
Die Flächen sind hochwertig mit Glastrennwänden unterteilt, wodurch eine flexible Raumaufteilung möglich ist. Ausstattungselemente können vom Vormieter übernommen werden. Technische Ausstattung umfasst Doppelböden, Kühlbalken, außenliegender Sonnenschutz, Stehleuchten, öffnende Fenster, Teeküchen und IT-Verkabelung. Die lichte Raumhöhe beträgt ca. 2,80 m. Im Gebäude gibt es eine großzügige Garage sowie Lagerflächen in den Untergeschossen (16 m²–117 m²). Verfügbare Büroflächen: Top 1 ca. 465 m², Top 3 ca. 503 m² im 4. OG.
- Flexible Büroflächen mit Glastrennwänden
- Technische Ausstattung: Doppelböden, Kühlbalken, IT-Verkabelung
- Außenliegender Sonnenschutz, Stehleuchten, öffnende Fenster
- Teeküchen, Raumhöhe 2,80 m
- Untergeschoss-Garage und Lagerflächen (16–117 m²)
Lage & Umgebung
Zentrale Lage in Wien 1020 am Walcherstraße, angrenzend an das Nordbahnviertel. Das Objekt liegt 5 Gehminuten vom Praterstern entfernt und bietet eine direkte Anbindung an U1, U2 sowie S-Bahn. In der Umgebung finden sich Nahversorgung, Gastronomie und Grünflächen; der Donaukanal ist ebenfalls in kurzer Zeit erreichbar. Die Infrastruktur ermöglicht kurze Wege sowohl für Mitarbeiter als auch für Kunden.
Zusätzliche Informationen
- Miete Büro: 15,50 €/m²; Nebenkosten 3,30 €/m² (inkl. HK); Strom 1,14 €/m²
- Stellplätze: 25 Stellplätze, 150,00 €/Stk. (inkl. BK)
- Kaution: 3–6 Bruttomonatsmieten
- Energieausweis: ÖGNI-zertifiziert; Baujahr 2013; Übergabe ab sofort
Preisübersicht
Gesamtbelastung
16 €/m²
/MonatKaution
-
Tour Request
Eigenschaften
Schlüsselinformationen
Fläche
Gebäude
Einheit
Parkmöglichkeiten
Grundriss

Was ist in der Nähe von Walcherstraße 11, Wien 1020
Über den Anbieter
Felix Zekely
Optin Immobilien GmbHhttps://optin.at/de/
Goldschmiedgasse 2, Wien 1010
über Optin Immobilien GmbH
159
9 Monaten
Preisübersicht
Gesamtbelastung
16 €/m²
/MonatKaution
-
Preisdetails
Tour Request
Felix Zekely
Optin Immobilien GmbHhttps://optin.at/de/
Goldschmiedgasse 2, Wien 1010