









20 €/m²
/MonatGeschäftslokal 218 m² im Hafenportal Linz – zentrale Lage, Miete
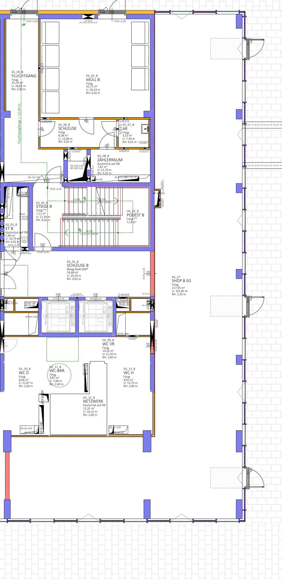
217,95 m²
Über diese Immobilie
Diese exklusive Gewerbefläche befindet sich im Linzer Hafenportal in 4020 Linz, zentral gelegen. Die Fläche umfasst ca. 218 m² Nettofläche im Erstbezug (Baujahr 2023) und bietet flexible Grundrisse für verschiedene Nutzungskonzepte.
Die EG Shop B Fläche umfasst ca. 218 m² Nettomietfläche und ist als Shop-/Ladenfläche nutzbar. Durch flexible Grundrisse lassen sich unterschiedliche Nutzungen realisieren – vom kleinen Laden bis zum größeren Dienstleistungsbereich. Große Glasfronten sorgen für viel Tageslicht; hochwertiger Bodenbelag und moderne Beleuchtung schaffen eine hochwertige Arbeits- und Verkaufsatmosphäre. Eine Klimaanlage sowie eine zentrale Heizungsanlage gewährleisten angenehme Temperaturen, und die separat zugänglichen WC-Einheiten erhöhen die Funktionalität. Die Einheit befindet sich im Hafenportal, einem Kernelement von Projekt Neuland, und ist bereits fertiggestellt. Von einer wettergeschützten Endhaltestelle aus ist die Anbindung an öffentliche Verkehrsmittel direkt gegeben.
- 218 m² Nettomietfläche im EG Shop B
- Große Glasfronten für viel Tageslicht
- Klimaanlage und zentrales Heizsystem
- Hochwertiger Bodenbelag und moderne Beleuchtung
- S separat zugängliche WC-Einheiten
- Direkte Anbindung an Autobahnen A1/A7
- Bereits fertiggestellt – sofort nutzbar
Lage & Umgebung
Zentrale Lage im Neustadtviertel von Linz, direkt im Hafenportal, mit bester Sichtbarkeit und Nachbarschaft zu hochwertigen Geschäftsflächen.
Die Infrastruktur ist hervorragend: öffentliche Verkehrsmittel sind direkt verfügbar; eine wettergeschützte Endhaltestelle ermöglicht schnellen Zugang zu Öffis. Die Autobahnanschlüsse A1 und A7 sind in kurzer Zeit erreichbar. In der Umgebung finden sich Nahversorgung, Gastronomie sowie Bildungseinrichtungen in wenigen Minuten Fußweg. Die unmittelbare Nähe zum Hauptbahnhof Linz sorgt zusätzlich für ideale Erreichbarkeit.
In wenigen Minuten erreichen Sie z. B. Kindergarten (0,25 Min.), Grundschule (0,65 Min.), Einkaufsgelegenheiten (2,02 Min.) und Gastronomie (0,08 Min.). Das Zentrum von Linz ist ca. 2,19 Min. entfernt; der Flughafen Linz ca. 12,26 Min. entfernt.
Zusätzliche Informationen
- Nettomiete: 4.359,00 EUR/Monat; Nebenkosten 499,11 EUR/Monat; Heizkosten 161,28 EUR/Monat; Gesamtbelastung netto 5.019,39 EUR/Monat; Gesamtmiete brutto 6.023,27 EUR/Monat
- Kaution: 3–6 BMM zzgl. USt.
- Energieausweis: HWB 30,5 kWh/m²a, Klasse B; Baujahr 2023
- Verfügbarkeit: nach Vereinbarung
Preisübersicht
Gesamtbelastung
20 €/m²
/MonatMiete
4.795 €
Betriebskosten
599 €
Heizkosten
-
Andere Kosten
-
Alle Beträge inkl. MwSt. Details zur Herkunft der Werte findest du in den Preisdetails.
Kaution
3 - 6 BMM zzgl. Ust.
Tour Request
Eigenschaften
Schlüsselinformationen
Fläche
Gebäude
Einheit
Wohnkomfort
Energie
Heizung
Kühlung
Heizwärmebedarf (HWB)
Über den Anbieter
Rainer Kutschera
ÖRAG Immobilien Vermittlung GmbHhttps://www.oerag.at/
Herrengasse 17, Wien 1010
über ÖRAG Immobilien Vermittlung GmbH
970
8 Monaten
Preisübersicht
Gesamtbelastung
20 €/m²
/MonatMiete
4.795 €
Betriebskosten
599 €
Heizkosten
-
Andere Kosten
-
Alle Beträge inkl. MwSt. Details zur Herkunft der Werte findest du in den Preisdetails.
Kaution
3 - 6 BMM zzgl. Ust.
Preisdetails
Tour Request
Rainer Kutschera
ÖRAG Immobilien Vermittlung GmbHhttps://www.oerag.at/
Herrengasse 17, Wien 1010